
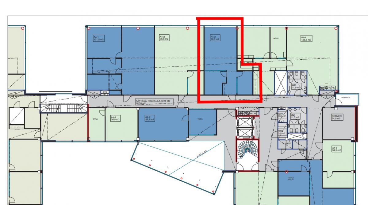
Vuokrataan toimisto 61 m² Linnoitustie 4, Leppävaara, Espoo
Vuokrataan tehokas toimistotila Quartetto Business Parkista, Espoon Leppävaarasta. Keittiö ja wc-tilat ovat yhteiskäytössä kerroksen muiden vuokralaisten kanssa.
Quartetto Business Park on tehokas ja viihtyisä yrityspuisto. Yrityspuiston toimitilakonsepti ja siihen liittyvä palvelukokonaisuus on suunniteltu vaativan yrityksen tarpeisiin. Kiinteistössä on laajat ja monipuoliset nykyaikaisen Business Parkin palvelut. Huoneistot ovat muunneltavissa huonekonttorista combikonttoriksi tai avotilaksi. Kiinteistössä on myös erillisiä kokous- ja edustustiloja.
Quartetto sijaitsee erinomaisella ja näkyvällä paikalla Etelä-Leppävaaran toimistoalueella Kehä I:n tuntumassa. Kauppakeskus Sellon palvelut sekä juna-asema ovat kävelymatkan etäisyydellä. Alueen hyviä julkisen liikenteen palveluja täydentävät kohteen hyvät henkilökunnan pysäköintitilat.
Lisätietoja soita 020 730 4530 tai info@repoint.fi. Palvelumme on tilanhakijalle ilmainen.
Toimiston tiedot
| Osoite: | Linnoitustie 4, 02600 Espoo |
|---|---|
| Kauppatapa: | Vuokrataan |
| Tilatyyppi: | Toimisto |
| Pinta-ala: | 61 m² |
| Kerros: | 4 |
| Vuokra: | Ota yhteyttä kohteen välittäjään |
| Energialuokka: | Ei energiatodistusta |
















