
Vuokrataan toimisto 273 m² Pasilankatu 2 , Pasila, Helsinki
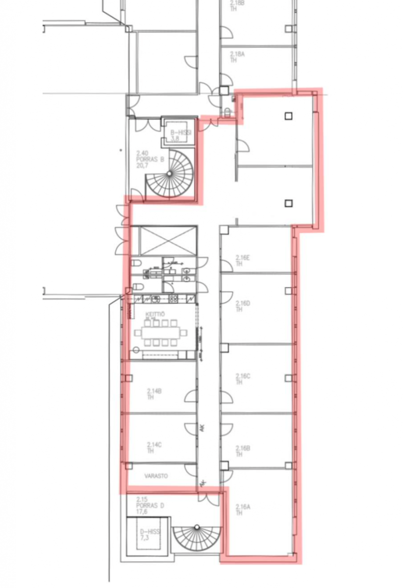
Vuokrataan siisti ja hyväkuntoinen 2. kerroksen toimistotila Huolintatalosta. Tilassa on 9 erikokoista huonetta, sekä 2 wc:tä ja iso keittiö. Tila on heti vapaa.
Merihenkisessä Huolintalossa on tasokas lounasravintola, erikseen vuokrattavia neuvottelutiloja, sekä noin 50 hengen koulutustila. Kiinteistössä aulapalvelu, uima-allas, pieni kuntosali, sauna ja suihkutilat työmatka pyöräilijöille. Autopaikkoja löytyy viereisestä pysäköintihallista. Loistava sijainti Pasilan juna-asema ja Triplan palvelut ovat muutaman minuutin kävelymatkan päässä.
Lisätietoja soita 020 730 4530 tai info@repoint.fi. Palvelumme on tilanhakijalle ilmainen.
Toimiston tiedot
| Osoite: | Pasilankatu 2 , 00240 Helsinki |
|---|---|
| Kauppatapa: | Vuokrataan |
| Tilatyyppi: | Toimisto |
| Pinta-ala: | 273 m² |
| Kerros: | 2 |
| Vuokra: | Ota yhteyttä kohteen välittäjään |
| Energialuokka: | Ei energiatodistusta |















