
Vuokrataan toimisto 400 m² Lemuntie 9, Vallila, Helsinki
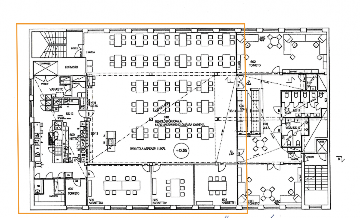
Vuokrataan ylimmän kerroksen monikäyttöinen tila Vallilasta. Tilassa on toiminut aikaisemmin talon henkilöstöruokala ja tilassa on toimiva valmistuskeittiö. Avonainen sali on keskeltä yli 5 metriä korkea ja isot ikkunat tuovat hyvin valoa tilaan. Ikkunoista hienot näkymät ulos.
Tila koostuu avotilasta, keittiöstä ja kolmesta neuvotteluhuoneesta. Tavarahissiyhteys kiinteistön lastauslaiturille, jossa mahtuu operoimaan pakettiautolla.
Lemuntie 9 on vanha teollisuusrakennus, joka on muutettu tyylikkäiksi toimistoiksi vanhaa kunnioittaen. Kohteessa on edullinen vuokrataso.
Lisätietoja soita 020 730 4530 tai info@repoint.fi. Palvelumme on tilanhakijalle ilmainen.
Toimiston tiedot
| Osoite: | Lemuntie 9, 00510 Helsinki |
|---|---|
| Kauppatapa: | Vuokrataan |
| Tilatyyppi: | Toimisto |
| Pinta-ala: | 400 m² |
| Kerros: | 6 |
| Vuokra: | Ota yhteyttä kohteen välittäjään |
| Energialuokka: | Ei energiatodistusta |














