
Vuokrataan toimisto 281 m² Kaisaniemenkatu 2B, Keskusta, Helsinki
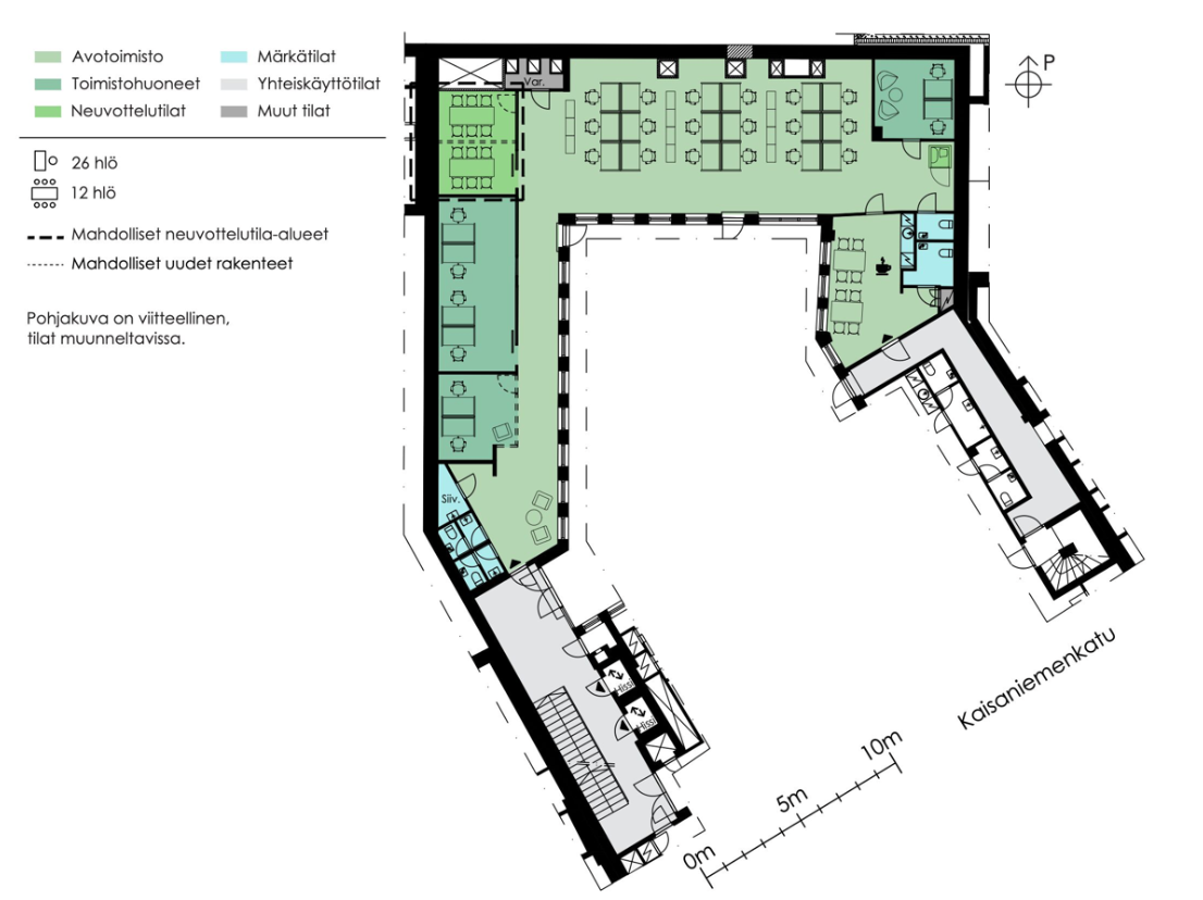
Vuokrataan viihtyisä toimistotila ydinkeskustasta. Tilassa avonaista toimistotilaa, sekä neuvotteluhuone ja kolme työhuonetta.
Kiinteistö sijaitsee Rautatientorin vieressä, Helsingin yliopiston metroaseman yläpuolella, minkä ansiosta kiinteistölle on erinomaiset julkisen liikenteen yhteydet ympäri pääkaupunkiseutua. Kiinteistössä on tehty putkiremontti vuoden 2025 aikana ja tämän yhteydessä uusittiin samalla kaikkien tilojen wc-pinnat sekä kalusteet. Kohteen omistaa Sponda.
Lisätietoja soita 020 730 4530 tai info@repoint.fi. Palvelumme on tilanhakijalle ilmainen.
Toimiston tiedot
| Osoite: | Kaisaniemenkatu 2B, 00100 Helsinki |
|---|---|
| Kauppatapa: | Vuokrataan |
| Tilatyyppi: | Toimisto |
| Pinta-ala: | 281 m² |
| Kerros: | 3 |
| Vuokra: | Ota yhteyttä kohteen välittäjään |
| Energialuokka: | E2007 |





