
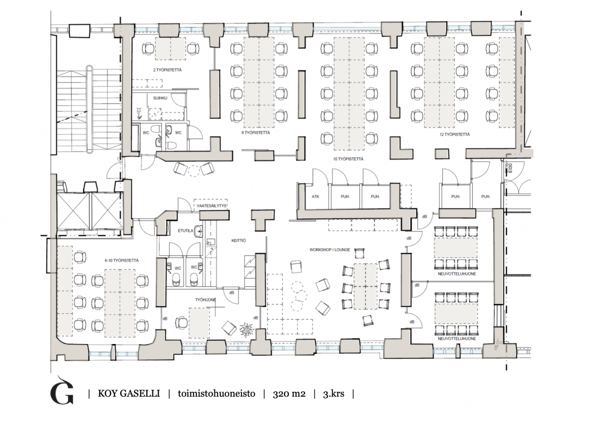
Vuokrataan toimisto 320 m² Mikonkatu 4 , Keskusta, Helsinki
Vuokrataan upea 3. kerroksen toimistotila mahtavalla sijainnilla Helsingin ydinkeskustasta. Tilassa erikokoisia avonaisia työskentelytiloja, kaksi neuvotteluhuonetta, keittiö- ja taukotilat, sekä 4 wc:tä ja suihku.
Kiinteistö sijaitsee Helsingin ydinkeskustan parhaimmalla paikalla Gaselli-korttelissa, Aleksanterinkadun varrella. Parannustyöt on saatu valmiiksi ja ne on tehty kiinteistön arkkitehtuuria ja arvokasta historiaa kunnioittaen. Tiloissa on koneellinen ilmanvaihto ja jäähdytys. Lähin autoilijoita palveleva pysäköintihalli sijaitsee Kluuvissa, sisäänajo Kaisaniemestä tai Fabianinkadulta. Julkisen liikenteen yhteydet ovat vain lyhyen kävelymatkan päässä.
Lisätietoja soita 020 730 4530 tai info@repoint.fi. Palvelumme on tilanhakijalle ilmainen.
Toimiston tiedot
| Osoite: | Mikonkatu 4 , 00100 Helsinki |
|---|---|
| Kauppatapa: | Vuokrataan |
| Tilatyyppi: | Toimisto |
| Pinta-ala: | 320 m² |
| Kerros: | 3 |
| Vuokra: | Ota yhteyttä kohteen välittäjään |
| Energialuokka: | Ei energiatodistusta |






