
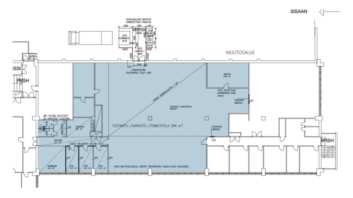
Vuokrataan tuotantotila 594 m² Koivuvaarankuja 2 , Koivuvaara, Vantaa
Vuokrattaan erittäin siisti tuotantotila. Tilassa on myös toimistoa, sekä viihtyisä keittiö. Tilasta on suora yhteys omalle lastauslaiturille, joka sijaitsee kiinteistön katetulla lastausalueella. Toimitila vapautuu 1.3.2026.
Ärrävaarassa on monipuoliset palvelut talon vuokralaisille, kuten erikseen varattavia neuvottelutiloja, aulapalvelu. Vuokraan sisältyy aulapalvelu sekä uima-altaan käyttöoikeus. Kohteessa toimivat kuntosali sekä laadukas lounasravintola. Talon pihalla on hyvin parkkipaikkoja.
Kiinteistön sijainti on hyvin saavutettavissa kehä III:n tuntumassa Vihdintien varrella. Bussipysäkit sijaitsevat kiinteistön edustalla ja liikkuvaa työtä tekevien on helppo päästä valtaväylille ilman ruuhkia.
Lisätietoja soita 020 730 4530 tai info@repoint.fi. Palvelumme on tilanhakijalle ilmainen.
Tuotantotilan tiedot
| Osoite: | Koivuvaarankuja 2 , 01640 Vantaa |
|---|---|
| Kauppatapa: | Vuokrataan |
| Tilatyyppi: | Tuotantotila |
| Pinta-ala: | 594 m² |
| Kerros: | 2 |
| Vuokra: | Ota yhteyttä kohteen välittäjään |
| Energialuokka: | Ei energiatodistusta |


















