
Vuokrataan tuotantotila 490 m² Koivuhaankuja 1, Koivuhaka, Vantaa
Vuokrataan hyväkuntoista toimitilaa, joka soveltuu toimistokäyttöön sekä myös kevyeen tuotantoon. Toimitilaan on kätevä kulkuyhteys lastauslaiturilta ja leveät pariovet mahdollistava sujuvan liikkumisen.
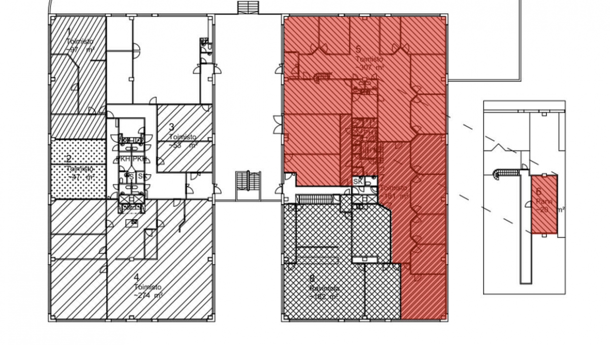
Toimistotila on pääosin avotilaa (pohjakuva ei pidä enää huonejaon puolesta paikkaansa).
Kiinteistössä toimii oma lounasravintola. Pysäköintipaikkoja on saatavilla kohteen pihalta.
Toimitila sijaitsee erinomaisella paikalla Tuusulanväylän vieressä, Vantaan Koivuhaassa. Koivuhaka sijaitsee Tikkurilan ja lentoaseman välissä, Tuusulanväylän ja Kehä III:n vieressä.
Lisätietoja soita 020 730 4530 tai info@repoint.fi. Palvelumme on tilanhakijalle ilmainen.
Tuotantotilan tiedot
| Osoite: | Koivuhaankuja 1, 01510 Vantaa |
|---|---|
| Kauppatapa: | Vuokrataan |
| Tilatyyppi: | Tuotantotila |
| Pinta-ala: | 490 m² |
| Kerros: | 1 |
| Vuokra: | Ota yhteyttä kohteen välittäjään |
| Energialuokka: | Ei energiatodistusta |







