
Vuokrataan toimisto 421 m² Metsänneidonkuja 6, Tapiola, Espoo
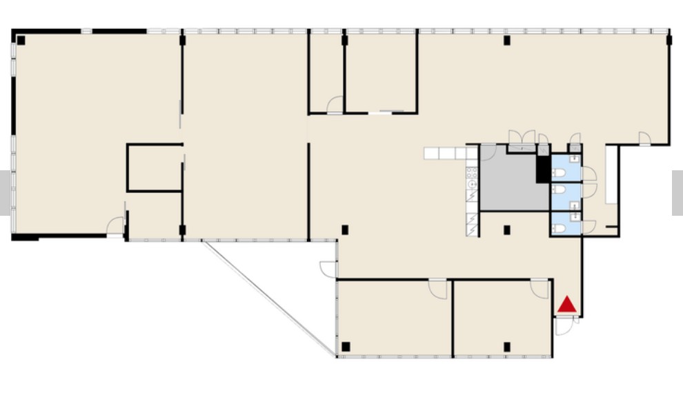
Vuokrataan 1. kerroksen tehokas toimistotila Spektri Business Parkista. Tämä Duo-talon toimisto koostuu avotilasta, tiimihuoneista , työhuoneista, keittiöstä ja sosiaalitiloista. Rauhallinen sijainti rakennuksen sisääntulokerroksessa.
Spektri Business Park sijaitsee Tapiolassa Kehä 1:n varrella. Spektriin on helppo saapua omalla autolla ja parkkipaikkoja on runsaasti. Metroasema on kävelyetäisyydellä ja bussipysäkki kiinteistön vieressä.
Työmatkapyöräilijöille löytyy pukuhuone- ja suihkutilat.
Spektri Business Park tarjoaa kattavat laadukkaat palvelut vuokralaisilleen, kuten aulapalvelu, kahvila ja ravintola, tasokas kuntosali sekä suihku- ja saunatilat, auditorio ja kokoustilat.
Lisätietoja soita 020 730 4530 tai info@repoint.fi. Palvelumme on tilanhakijalle ilmainen.
Toimiston tiedot
| Osoite: | Metsänneidonkuja 6, 02130 Espoo |
|---|---|
| Kauppatapa: | Vuokrataan |
| Tilatyyppi: | Toimisto |
| Pinta-ala: | 421 m² |
| Kerros: | 1 |
| Vuokra: | Ota yhteyttä kohteen välittäjään |
| Energialuokka: | Ei energiatodistusta |













