
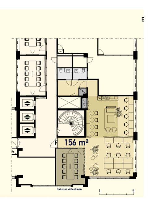
Vuokrataan toimisto 156 m² Esterinportti 2 , Pasila, Helsinki
Vuokrataan valoisa ja avara toimistotila Pasilasta. Hyväkuntoisessa toimistossa on avotoimistoa, varaus neuvotteluhuoneelle, sekä avokeittiö ja wc-tilat. Samassa kerroksessa on lisäksi yksi neuvotteluhuone, jonka on käyttöoikeus sisältyy vuokraan.
Esterinportti 2 talossa on hyvät palvelut talon vuokralaisille, kuten aulapalvelu, suosittu lounasravintola Factory, kuntosali, pyöräparkki, sauna- ja suihkutilat, erikseen vuokrattavia kokoustiloja, sekä parkkihalli.
Kohde on hyvin saavutettavissa ja kattavat palvelut löytyvät läheltä. Pasilan juna-asemalle ja Triplaan alle 5 minuutin kävelymatka, sekä raitiovaunut 2,7 ja 9 kulkevat vierestä.
Lisätietoja soita 020 730 4530 tai info@repoint.fi. Palvelumme on tilanhakijalle ilmainen.
Toimiston tiedot
| Osoite: | Esterinportti 2 , 00240 Helsinki |
|---|---|
| Kauppatapa: | Vuokrataan |
| Tilatyyppi: | Toimisto |
| Pinta-ala: | 156 m² |
| Kerros: | 3 |
| Vuokra: | Ota yhteyttä kohteen välittäjään |
| Energialuokka: | Ei energiatodistusta |
















