
Vuokrataan toimisto 120 m² Fredrikinkatu 55 , Keskusta, Helsinki
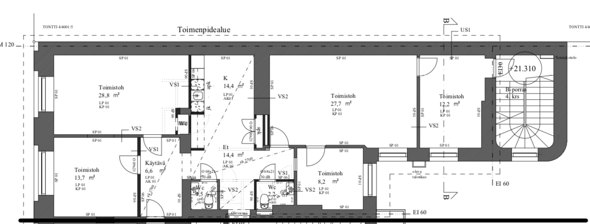
Vuokrataan toimistotila Kampista. Tämä tehokas ja siisti tila koostuu avotyöskentelytilasta, 4 työhuoneesta, tyylikkäästä keittiöstä ja kahdesta vessasta. Tila vapautuu 1.2.2026.
Loistava sijainti Kampin metroaseman ja palveluiden vierestä.
Lisätietoja soita 020 730 4530 tai info@repoint.fi. Palvelumme on tilanhakijalle ilmainen.
Toimiston tiedot
| Osoite: | Fredrikinkatu 55 , 00100 Helsinki |
|---|---|
| Kauppatapa: | Vuokrataan |
| Tilatyyppi: | Toimisto |
| Pinta-ala: | 120 m² |
| Kerros: | 4 |
| Vuokra: | Ota yhteyttä kohteen välittäjään |
| Energialuokka: | Ei energiatodistusta |
















