
Vuokrataan toimisto 382 m² Mikonkatu 8 A, Keskusta, Helsinki
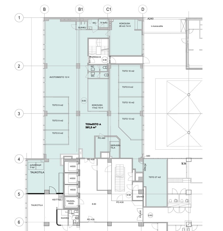
Vuokrataan 3. kerroksen toimisto aitiopaikalta Aikatalosta Helsingin ydinkeskustasta. Tilassa on 8 työhuonetta, 2 kokoushuonetta, taukotila ja keittiö sekä 3 wc:tä ja suihku. Koneellinen ilmanvaihto ja jäähdytys.
Lounaspaikat ja kaikki julkiset yhteydet lähellä. Autoilijoille vuokrattavissa parkkipaikkoja alueen pysäköintilaitoksista.
Lisätietoja soita 020 730 4530 tai info@repoint.fi. Palvelumme on tilanhakijalle ilmainen.
Toimiston tiedot
| Osoite: | Mikonkatu 8 A, 00100 Helsinki |
|---|---|
| Kauppatapa: | Vuokrataan |
| Tilatyyppi: | Toimisto |
| Pinta-ala: | 382 m² |
| Kerros: | 3 |
| Vuokra: | Ota yhteyttä kohteen välittäjään |
| Energialuokka: | Ei energiatodistusta |






