
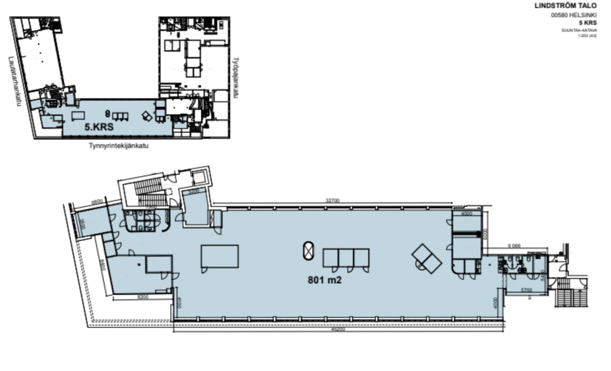
Vuokrataan toimisto 801 m² Lautatarhankatu 6 , Kalasatama, Helsinki
Vuokrataan ylimmän kerroksen kaarevakattoinen avotila muutamilla huoneilla ja vetäytymistiloilla.
Lindström Talo on upeasti saneerattu punatiilinen teollisuuskiinteistö Kalasatamassa, jonka suuret ikkunat sekä avarat ja valoisat tilat luovat ainutlaatuisen tunnelman. Talossa on monipuoliset palvelut vuokralaisille kuten aulapalvelu, lounasravintola ja erikseen vuokrattavia erikokoisia tyylikkäitä neuvottelutiloja, sekä auditorio. Talossa on oma pysäköintihalli ja pyöräparkki.
Hyvä sijainti Kalasataman kehittyvällä alueella, metro ja REDI ovat kävelymatkan päässä.
Lisätietoja soita 020 730 4530 tai info@repoint.fi. Palvelumme on tilanhakijalle ilmainen.
Toimiston tiedot
| Osoite: | Lautatarhankatu 6 , 00580 Helsinki |
|---|---|
| Kauppatapa: | Vuokrataan |
| Tilatyyppi: | Toimisto |
| Pinta-ala: | 801 m² |
| Kerros: | 5 |
| Vuokra: | Ota yhteyttä kohteen välittäjään |
| Energialuokka: | Ei energiatodistusta |

















