
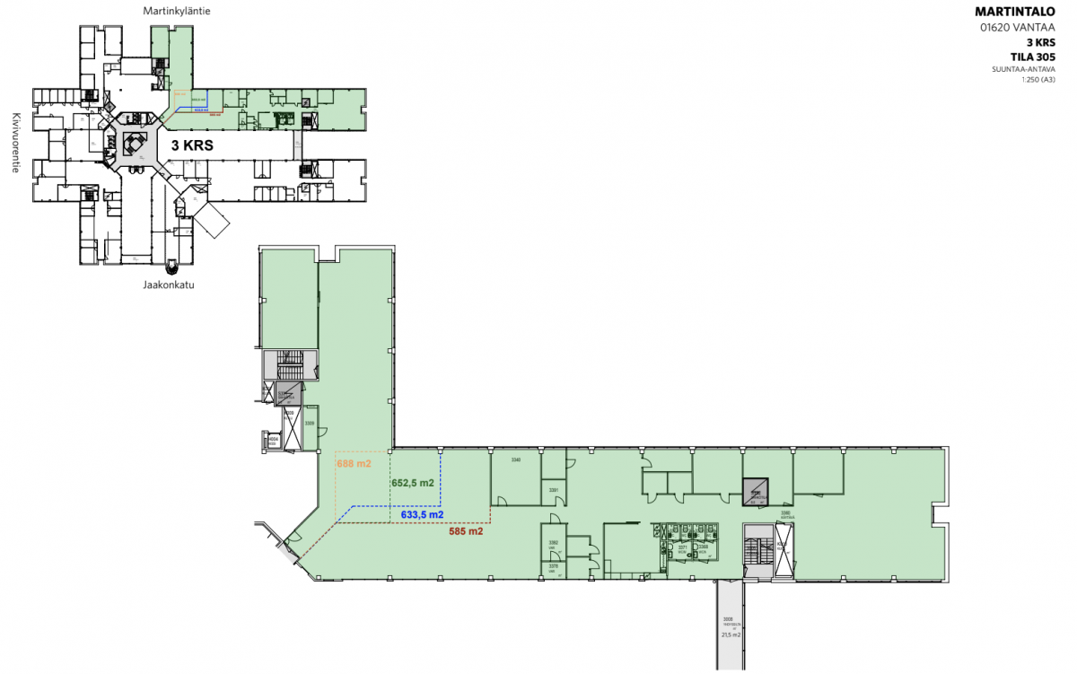
Vuokrataan toimisto 1115 m² Jaakonkatu 2 , Martinlaakso, Vantaa
Vuokrataan viihtyisää ja valoisaa toimistotilaa Martintalosta. Tila suunnitellaan ja remontoidaan seuraavan käyttäjän taropeiden ja toiveiden mukaan. Tilasta on mahdollista jakaa myös 585m2/652m2/899m2 kokoiset toimistot.
Martintalosta Vantaankosken juna-aseman vieressä lähes koko 3. kerroksen toimistotila, joka suunnitellaan ja toteutetaan asiakkaan pinta-alan ja tilaohjelman mukaisesti. Martintalo tarjoaa kattavat palvelut, mukaan lukien lounasravintolan, auditorion sekä kuntosalin. Kohteeseen saavut helposti niin omalla autolla kuin julkisillakin.
Viihtyisästä Martintalo kiinteistöstä löytyvät monipuoliset palvelut talon vuokralaisille, kuten lounasravintola, auditorio, vuokrattavia neuvottelutiloja, viihtyisät saunatilat sekä kuntosali.
Kiinteistö sijaitsee Vantaankoskella, noin 15 km Helsingistä pohjoiseen. Kiinteistön välittömässä läheisyydessä sijaitsee Vantaankosken juna-asema, josta pääsee kätevästi niin Helsingin keskustaan kuin Helsinki-Vantaan lentoasemallekin.
Lisätietoja soita 020 730 4530 tai info@repoint.fi. Palvelumme on tilanhakijalle ilmainen.
Toimiston tiedot
| Osoite: | Jaakonkatu 2 , 01620 Vantaa |
|---|---|
| Kauppatapa: | Vuokrataan |
| Tilatyyppi: | Toimisto |
| Pinta-ala: | 1115 m² |
| Kerros: | 3 |
| Vuokra: | Ota yhteyttä kohteen välittäjään |
| Energialuokka: | Ei energiatodistusta |
















