
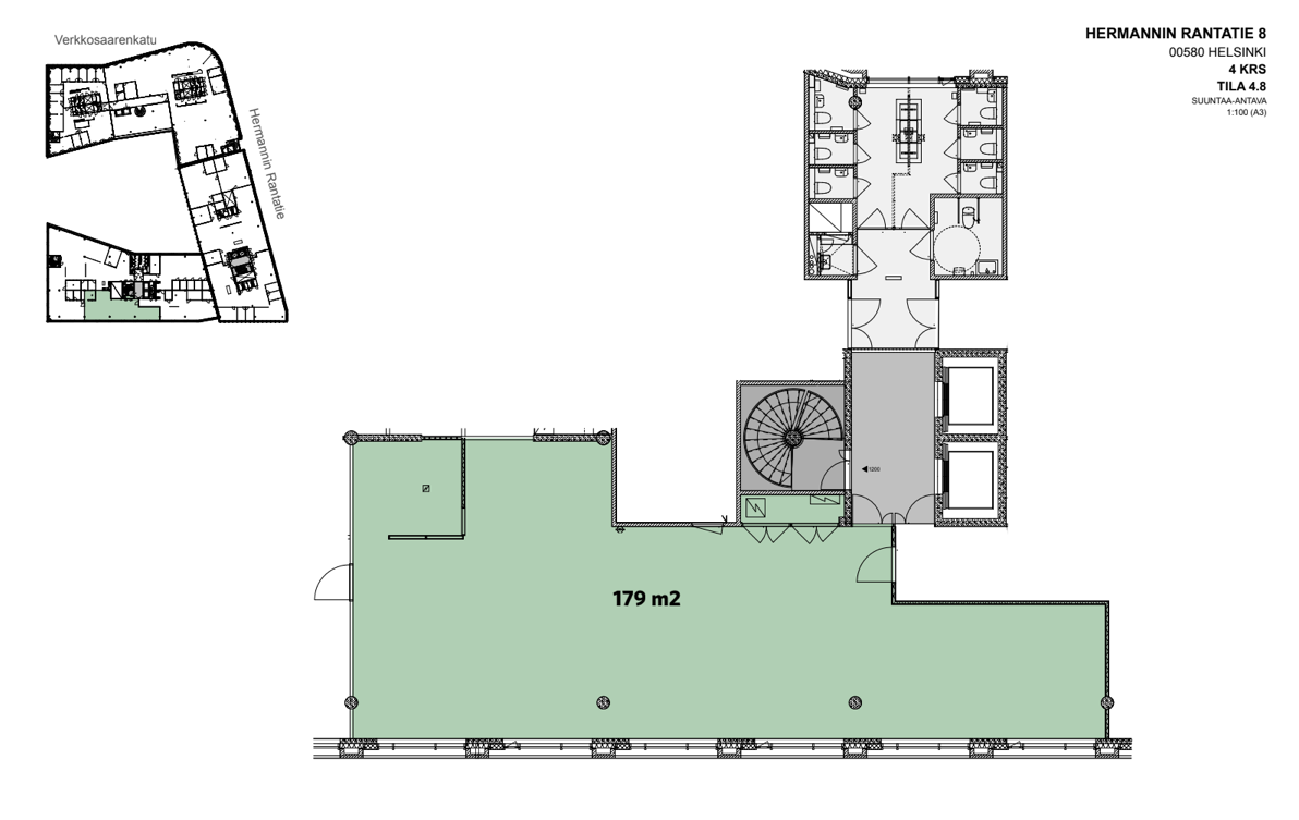
Vuokrataan toimisto 179 m² Hermannin rantatie 8 , Kalasatama, Helsinki
Vuokrataan moderni ja avara toimistotila, johon mahdollista rakentaa myös huoneita. Tilaan asennetaan uusi integroitu keittiö seuraavalle vuokralaiselle. Suuret lattiasta kattoon olevat ikkunat antavat paljon luonnonvaloa koko tilaan.
Rantatie Business Park on korkeatasoinen usean käyttäjän toimistotalo Kalasataman kehittyvällä alueella, parhaalla paikalla Hermannin Rantatien varrella. Modernien ja tyylikkäiden talojen laadukkaat tilat ovat helposti muunneltavissa vastaamaan erilaisten käyttäjien tarpeita. Talossa on kattavat palvelut vuokralaisille.
Kalasataman metroasemalle ja REDI kauppakeskukseen on lyhyt kävelymatka ja autoilijoille vuokrattavissa pysäköintitilaa. Työmatkapyöräilijöille hyvät sosiaalitilat.
Lisätietoja soita 020 730 4530 tai info@repoint.fi. Palvelumme on tilanhakijalle ilmainen.
Toimiston tiedot
| Osoite: | Hermannin rantatie 8 , 00580 Helsinki |
|---|---|
| Kauppatapa: | Vuokrataan |
| Tilatyyppi: | Toimisto |
| Pinta-ala: | 179 m² |
| Kerros: | 4 |
| Vuokra: | Ota yhteyttä kohteen välittäjään |
| Energialuokka: | Ei energiatodistusta |











