
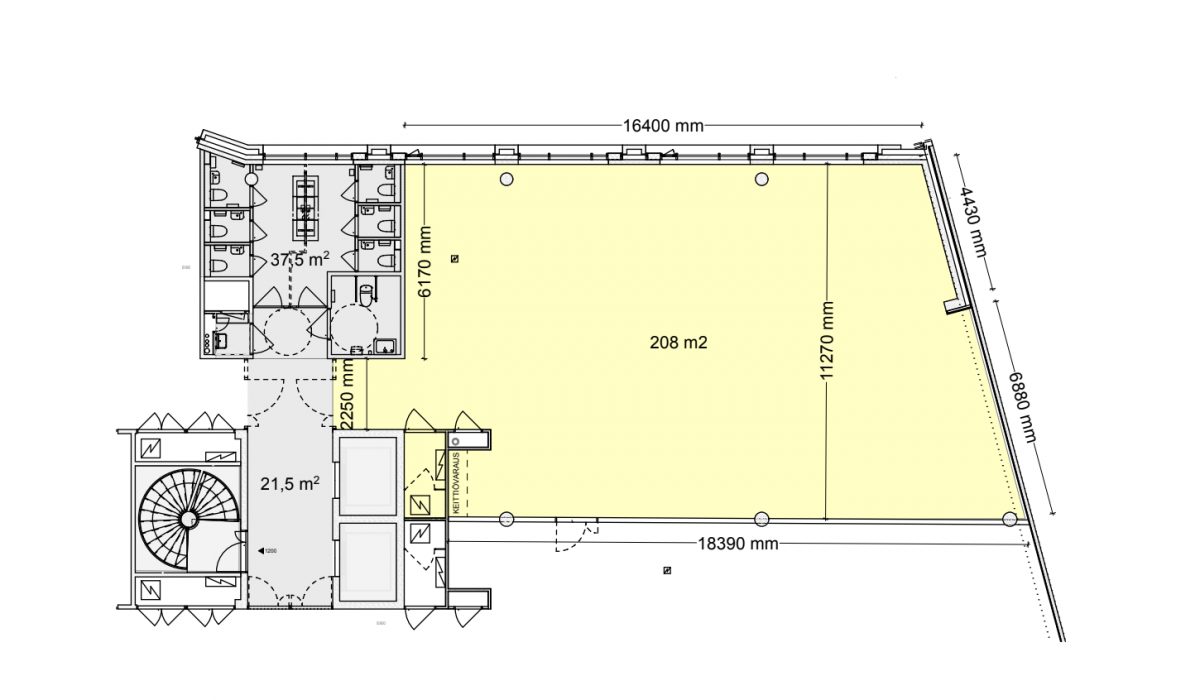
Vuokrataan toimisto 208 m² Hermannin rantatie 8 , Kalasatama, Helsinki
Vuokrataan moderni monitilatoimisto edustavassa toimistotalossa. Tilassa avotila on jaettu osittain omiksi työalueiksi isommille ja pienemmille tiimeille, lisäksi neuvottelu- ja teamstiloja. Tilassa on suuri keittiö ja loungealue.
Rantatie Business Park on korkeatasoinen usean käyttäjän toimistotalo Kalasataman kehittyvällä alueella, parhaalla paikalla Hermannin Rantatien varrella. Modernien ja tyylikkäiden talojen laadukkaat tilat ovat helposti muunneltavissa vastaamaan erilaisten käyttäjien tarpeita. Talossa on kattavat palvelut vuokralaisille.
Kalasataman metroasemalle ja REDI kauppakeskukseen on lyhyt kävelymatka ja autoilijoille vuokrattavissa pysäköintitilaa. Työmatkapyöräilijöille hyvät sosiaalitilat.
Lisätietoja soita 020 730 4530 tai info@repoint.fi. Palvelumme on tilanhakijalle ilmainen.
Toimiston tiedot
| Osoite: | Hermannin rantatie 8 , 00580 Helsinki |
|---|---|
| Kauppatapa: | Vuokrataan |
| Tilatyyppi: | Toimisto |
| Pinta-ala: | 208 m² |
| Kerros: | 5 |
| Vuokra: | Ota yhteyttä kohteen välittäjään |
| Energialuokka: | Ei energiatodistusta |











