
Vuokrataan toimisto 230 m² Fredrikinkatu 47, Keskusta, Helsinki
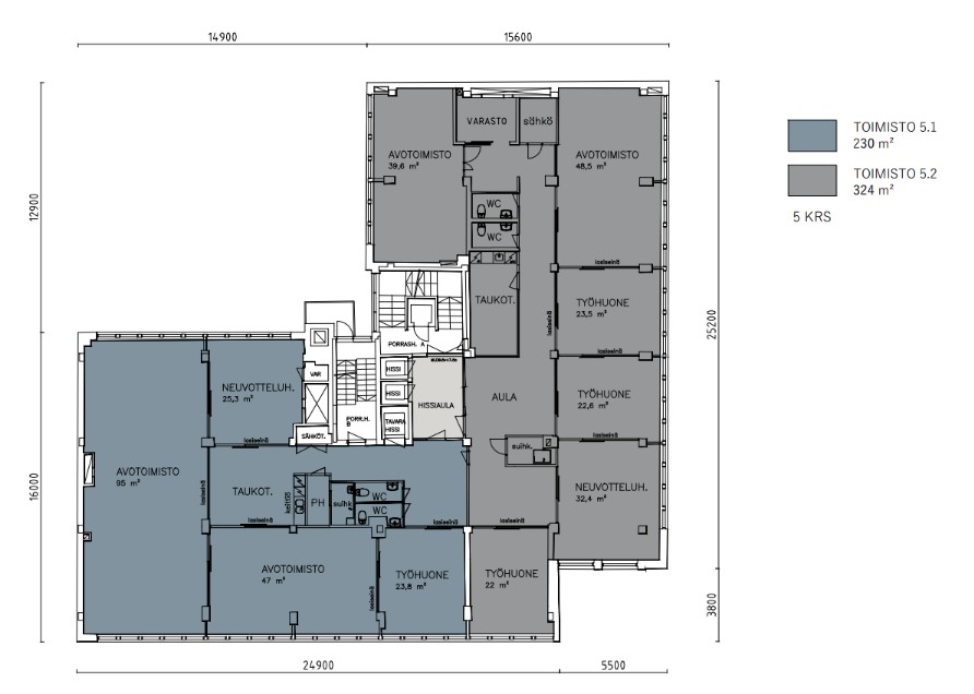
Vuokrataan tehokas läpitalon toimisto Fredrikinkadulta Kampista. Toimisto koostuu kahdesta isosta tiimihuoneesta, neuvotteluhuoneesta, työhuoneesta ja keittiöstä. Lisäksi 2 wc:tä ja oma suihkutila. Tila voidaan tarvittaessa yhdistää viereisen 324m2 toimiston kanssa, jolloin kokonaisuus on yhteensä n. 550m2.
Huippusijainti Kampissa, 6 minuutin kävely Kampin metroasemalle. Kampin kauppakeskuksen kattavat palvelut ja lounaspaikat lähellä. Pysäköintipaikkoja vuokrattavissa Kampin ja Forumin pysäköintilaitoksista.
Lisätietoja soita 020 730 4530 tai info@repoint.fi. Palvelumme on tilanhakijalle ilmainen.
Toimiston tiedot
| Osoite: | Fredrikinkatu 47, 00100 Helsinki |
|---|---|
| Kauppatapa: | Vuokrataan |
| Tilatyyppi: | Toimisto |
| Pinta-ala: | 230 m² |
| Kerros: | 5 |
| Vuokra: | Ota yhteyttä kohteen välittäjään |
| Energialuokka: | Ei energiatodistusta |










