
Vuokrataan toimisto 86 m² Lönnrotinkatu 32 , Keskusta, Helsinki
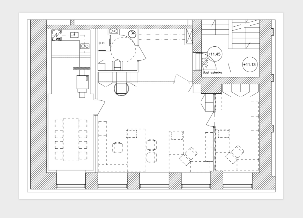
Vuokrataan siisti ja tyylikäs toimistotila Hietalahdentorin läheisyydestä. Tehokkaassa tilassa on avotoimistoa, työhuone, wc ja suihku, sekä keittiö- ja taukotilat, jotka toimivat tarvittaessa myös kokoustilana. Tila on heti vapaana
Lisätietoja soita 020 730 4530 tai info@repoint.fi. Palvelumme on tilanhakijalle ilmainen.
Toimiston tiedot
| Osoite: | Lönnrotinkatu 32 , 00180 Helsinki |
|---|---|
| Kauppatapa: | Vuokrataan |
| Tilatyyppi: | Toimisto |
| Pinta-ala: | 86 m² |
| Kerros: | 2 |
| Vuokra: | Ota yhteyttä kohteen välittäjään |
| Energialuokka: | Ei energiatodistusta |















