
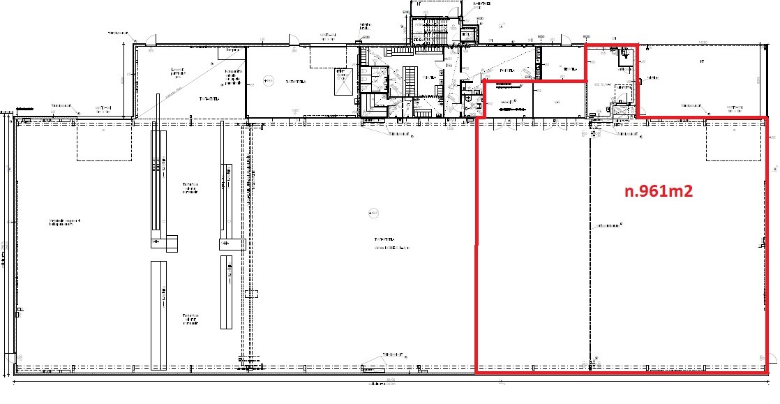
Vuokrataan tuotantotila 960 m² Vanha Porvoontie 256 A, Hakkila, Vantaa
Vuokrataan sisäänajettava hallitila Hakkilasta Lahdentien varresta. Lattian kantavuus on 1500kg / m2. Iso 6 x 6 metrin nosto-ovi. Hallin vapaa korkeus on 8 metriä, siltanostureiden kohdalla n. 7 metriä.
Lisäksi löytyy sosiaali- ja pukuhuonetilat. Tila on heti vapaa.
Kiinteistö sijaitsee lentoaseman ja Vuosaaren sataman puolivälissä sekä valtaväylien läheisyydessä. Kohdetta on helppo lähestyä ja sieltä on hyvät, toimivat yhteydet kaikkialle Suomeen. Läheltä kulkevat mm. Kehä III ja Lahdenväylä, jolle liittymä on Koivukylänväylältä.
Alueella on hyvät pysäköintimahdollisuudet isolla piha-alueella, jossa suuretkin kuljetusautot mahtuvat liikkumaan vaivattomasti.
Lisätietoja soita 020 730 4530 tai info@repoint.fi. Palvelumme on tilanhakijalle ilmainen.
Tuotantotilan tiedot
| Osoite: | Vanha Porvoontie 256 A, 01380 Vantaa |
|---|---|
| Kauppatapa: | Vuokrataan |
| Tilatyyppi: | Tuotantotila |
| Pinta-ala: | 960 m² |
| Kerros: | 1 |
| Vuokra: | Ota yhteyttä kohteen välittäjään |
| Energialuokka: | Ei energiatodistusta |





