
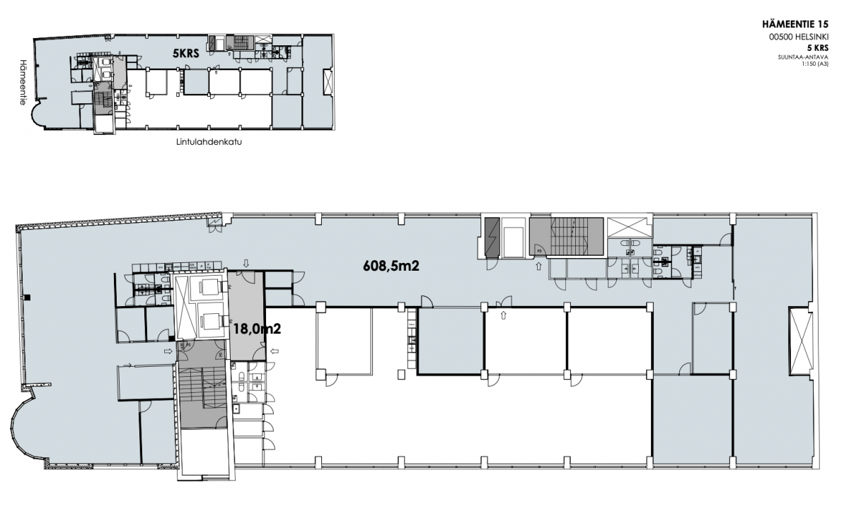
Vuokrataan toimisto 608 m² Hämeentie 15 , Sörnäinen, Helsinki
Vuokrataan siisti monitilatoimisto Sörnäisistä. Avarassa tilassa on avotoimistoa ja erikokoisia huoneita. Ilmoituksen kuvissa esimerkkejä taloon toteutetuista tiloista.
Hämeentie 15 kiinteistö sijaitsee hyvällä paikalla Sörnäisissä. Julkiset kulkuyhteydet ovat erinomaiset, raitiovaunu- ja bussipysäkit Hämeentiellä ja Sörnäisten metroasemalle on kävelyetäisyydellä.
Lisätietoja soita 020 730 4530 tai info@repoint.fi. Palvelumme on tilanhakijalle ilmainen.
Toimiston tiedot
| Osoite: | Hämeentie 15 , 00500 Helsinki |
|---|---|
| Kauppatapa: | Vuokrataan |
| Tilatyyppi: | Toimisto |
| Pinta-ala: | 608 m² |
| Kerros: | 5 |
| Vuokra: | Ota yhteyttä kohteen välittäjään |
| Energialuokka: | Ei energiatodistusta |








