
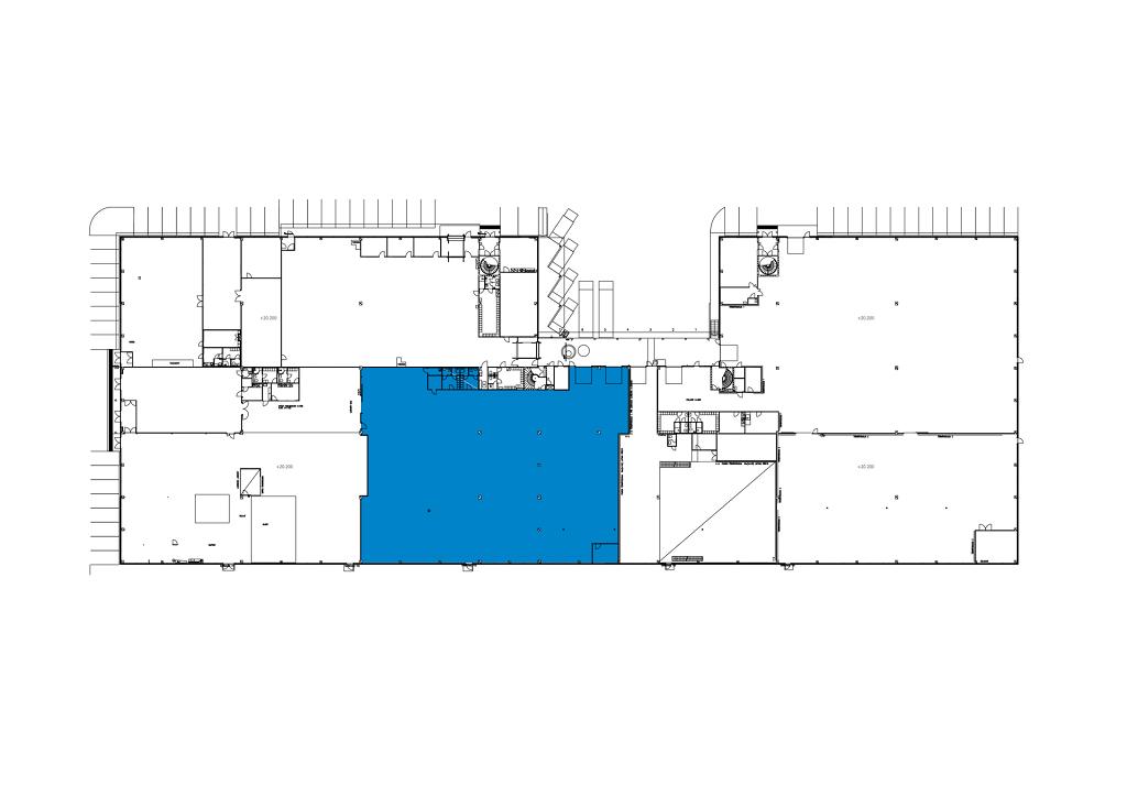
Vuokrataan varasto 1487 m² Tammiston kauppatie 27, Tammisto, Vantaa
Vuokrataan vapautumassa oleva varastotila Tammistosta hyvältä sijainnilta. Lastauslaiturilla varustettu tila, josta 2 nosto-ovea varastoon. Tilan vapaa korkeus 8,6 metriä ja lattiakantavuus 2000 kg / m2.
Tammiston Kauppatie 27 sijaitsee Jumbon ja lentokentän läheisyydessä Kehä III:n sekä Tuusulan väylän kainalossa, Vantaan sydämessä. Bussiyhteydet Helsingin keskustaan ja muualle Vantaalle ovat hyvät.
Lisätietoja soita 020 730 4530 tai info@repoint.fi. Palvelumme on tilanhakijalle ilmainen.
Varaston tiedot
| Osoite: | Tammiston kauppatie 27, 01510 Vantaa |
|---|---|
| Kauppatapa: | Vuokrataan |
| Tilatyyppi: | Varasto |
| Pinta-ala: | 1487 m² |
| Kerros: | 1 |
| Vuokra: | Ota yhteyttä kohteen välittäjään |
| Energialuokka: | Ei energiatodistusta |







