
Vuokrataan toimisto 367 m² Esterinportti 2 , Pasila, Helsinki
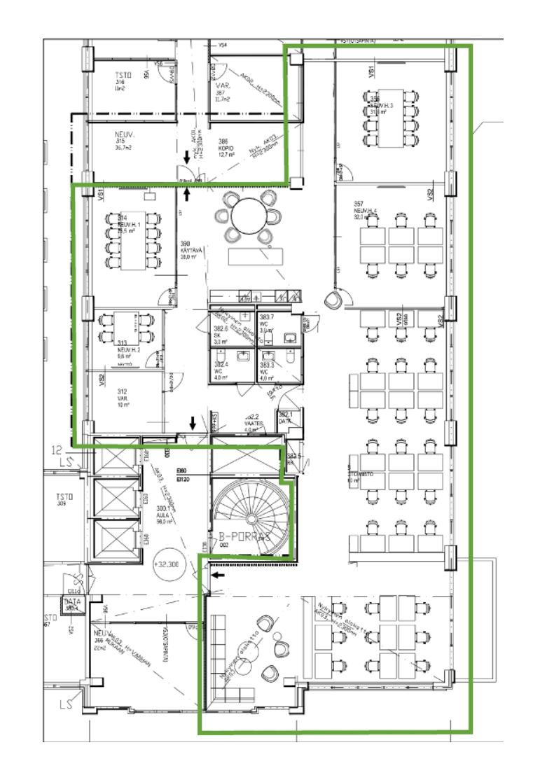
Vuokrataan 3. kerroksen moderni ja valoisa toimistotila, joka tarjoaa ihanteelliset puitteet tehokkaaseen työskentelyyn. Tilasta löytyy avara avotila, useita tiimi- ja neuvotteluhuoneita sekä pienempiä työhuoneita, jotka mahdollistavat joustavan työskentelyn eri tarpeisiin. Tyylikäs avokeittiö toimii loistavana kohtaamispaikkana, ja siistit wc-tilat tuovat lisämukavuutta arkeen. Tila on erinomaisessa kunnossa ja täysin muuttovalmis.
Esterinportti 2 talossa on hyvät palvelut talon vuokralaisille, kuten aulapalvelu, suosittu lounasravintola Factory, kuntosali, pyöräparkki, sauna- ja suihkutilat, sekä parkkihalli.
Kohde on hyvin saavutettavissa ja kattavat palvelut löytyvät läheltä. Pasilan juna-asemalle ja Triplaan alle 5 minuutin kävelymatka, sekä raitiovaunut 2,7 ja 9 kulkevat vierestä.
Lisätietoja soita 020 730 4530 tai info@repoint.fi. Palvelumme on tilanhakijalle ilmainen.
Toimiston tiedot
| Osoite: | Esterinportti 2 , 00240 Helsinki |
|---|---|
| Kauppatapa: | Vuokrataan |
| Tilatyyppi: | Toimisto |
| Pinta-ala: | 367 m² |
| Kerros: | 5 |
| Vuokra: | Ota yhteyttä kohteen välittäjään |
| Energialuokka: | Ei energiatodistusta |






