
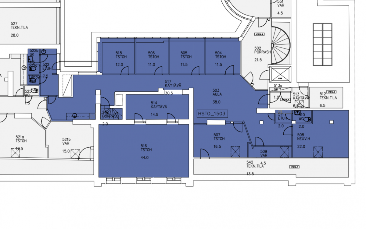
Vuokrataan toimisto 299 m² Annankatu 27 , Keskusta, Helsinki
Vuokrataan tyylikäs 5. kerroksen toimistotila Annankadulta. Tila vapautuu 1.3.2025.
Kiinteistö sijaitsee helposti saavutettavalla paikalla Annankadun ja Eerikinkadun kulmassa. Sijainti kauppakeskus Kampin läheisyydessä takaa kattavat palvelut ja hyvät julkiset kulkuyhteydet.
Lisätietoja soita 020 730 4530 tai info@repoint.fi. Palvelumme on tilanhakijalle ilmainen.
Toimiston tiedot
| Osoite: | Annankatu 27 , 00100 Helsinki |
|---|---|
| Kauppatapa: | Vuokrataan |
| Tilatyyppi: | Toimisto |
| Pinta-ala: | 299 m² |
| Kerros: | 5 |
| Vuokra: | Ota yhteyttä kohteen välittäjään |
| Energialuokka: | Ei energiatodistusta |

