
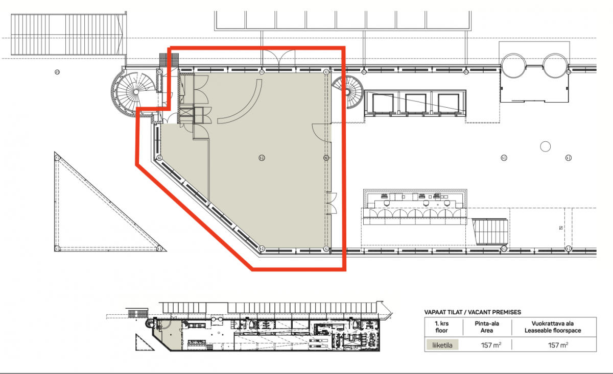
Vuokrataan toimisto 157 m² Keilasatama 5 , Keilaniemi, Espoo
Vuokrataan 1. kerroksen tila omalla sisäänkäynnillä. Talon aulasta toinen sisäänkäynti avaraan tilaan.
Keilasatama 5 on näyttävä toimistotalo Espoon Keilaniemessä. Tämä palveluiltaan laadukas toimistotalo sijaitsee Keilaniemen parhaalla paikalla metroaseman läheisyydessä.
Keilasatamassa on laajat ja monipuoliset nykyaikaisen Business Parkin palvelut. Kiinteistön toisessa kerroksessa sijaitsee neuvottelukeskus, jonka kaikki 21 neuvotteluhuonetta ovat vuokralaisten vapaassa käytössä varausjärjestelmän kautta.
Erinomainen sijainti Kehä 1:n ja Länsiväylän vieressä takaa hyvät julkisen liikenteen palvelut. Autopaikkoja vuokrattavissa kiinteistön omasta parkkihallista.
Lisätietoja soita 020 730 4530 tai info@repoint.fi. Palvelumme on tilanhakijalle ilmainen.
Toimiston tiedot
| Osoite: | Keilasatama 5 , 02150 Espoo |
|---|---|
| Kauppatapa: | Vuokrataan |
| Tilatyyppi: | Toimisto |
| Pinta-ala: | 157 m² |
| Kerros: | 1 |
| Vuokra: | Ota yhteyttä kohteen välittäjään |
| Energialuokka: | Ei energiatodistusta |








