
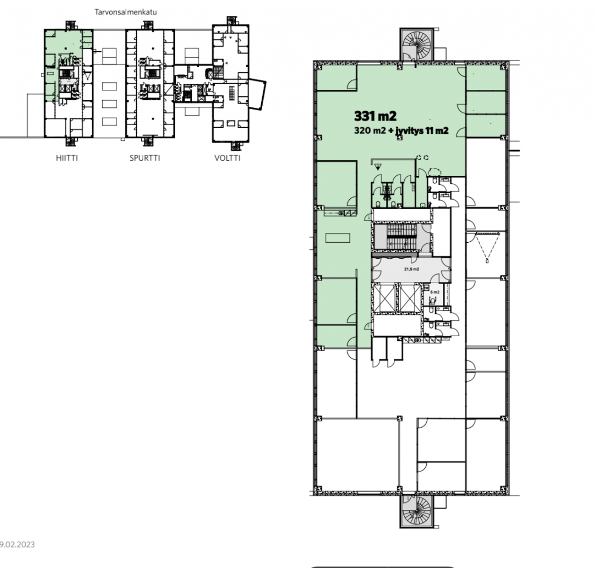
Vuokrataan toimisto 331 m² Tarvonsalmentie 15 , Perkkaa, Espoo
Vuokrattavana muuntojoustava kuudennen kerroksen toimistotila. Tilaa on mahdollista muokata seuraavan vuokralaisen toiveiden mukaan.
Derby Business Park on moderni kolmen toimistotalon kokonaisuus Perkkaalla. Derbyssä on monipuoliset palvelut tilojen vuokralaisille, kuten aulapalvelu, ravintola ja kahvila, erikseen vuokrattavia neuvottelutiloja, kuntosali, sekä pukuhuoneet ja saunatilat.
Kiinteistö sijaitsee hyvien kulkuyhteyksien varrella, joten paikalle pääsee niin omalla autolla, kuin julkisilla kulkuvällineilläkin.
Lisätietoja soita 020 730 4530 tai info@repoint.fi. Palvelumme on tilanhakijalle ilmainen.
Toimiston tiedot
| Osoite: | Tarvonsalmentie 15 , 02600 Espoo |
|---|---|
| Kauppatapa: | Vuokrataan |
| Tilatyyppi: | Toimisto |
| Pinta-ala: | 331 m² |
| Kerros: | 6 |
| Vuokra: | Ota yhteyttä kohteen välittäjään |
| Energialuokka: | Ei energiatodistusta |







