
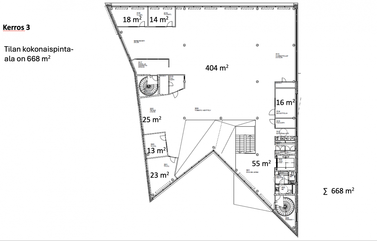
Vuokrataan toimisto 668 m² Rälssintie 2, Pukinmäki, Helsinki
Vuokrataan valoisaa ja avaraa toimisto- tai näyttelytilaa Kehä I:n varrelta. Näyttävässä ja hyväkuntoisessa tilassa on avonaista työskentytilaa ja 5 huonetta, jotka toimivat hyvin myös neuvottelutiloina.
Samasta talosta on mahdollista vuokrata myös ensimmäisestä kerroksesta hyvä sisäänajettava varastotila noin 135m2, sekä upea näyttelytila noin 145m2.
Rälssintie 2 on näyttävä toimistorakennus Kehä I:n varrella. Kohteeseen on hyvät liikenneyhteydet, niin autolla kuin julkisella liikenteellä. Talossa on myös pukuhuoneet ja suihkutilat työmatkapyöräilijöille. Autopaikkoja saatavilla kiinteistön pihalta.
Lisätietoja soita 020 730 4530 tai info@repoint.fi. Palvelumme on tilanhakijalle ilmainen.
Toimiston tiedot
| Osoite: | Rälssintie 2, 00720 Helsinki |
|---|---|
| Kauppatapa: | Vuokrataan |
| Tilatyyppi: | Toimisto |
| Pinta-ala: | 668 m² |
| Kerros: | 3 |
| Vuokra: | Ota yhteyttä kohteen välittäjään |
| Energialuokka: | Ei energiatodistusta |




















