
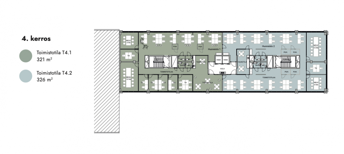
Vuokrataan toimisto 321 m² Kaikukatu 3 , Kallio, Helsinki
Vuokrataan modernia ja muuntojoustavaa toimistotilaa Kalliosta Väinö Tannerin kentän vierestä. Kiinteistö on kokonaisuudessaan peruskorjattu vastaamaan tämän päivän vaatimuksia.
Toimistotilat tehdään loppuun seuraavan vuokralaisen toiveet ja tarpeet huomioiden. Tilat soveltuvat hyvin erilaisiin ratkaisuihin.
Helsingin Kallion Kaikukadulla sijaitseva toimitilakiinteistö Haiku yhdistää ainutlaatuisella tavalla menneen historiansa uuteen, moderniin tunnelmaan. Kunnianhimoisen peruskorjauksen läpikäyvä, omaa alkuperäistä tyyliään myös uudistettuna edustava kiinteistö luo sujuvan ja miellyttävän rytmin yritysten arjelle.
Työmatkaliikkujat hymyilevät Haikussa. Kuivaushuoneet tekevät varustehuollosta helppoa ja pukuhuonetiloja on useita – myös liikuntarajoitteisille omansa. Polkupyöräparkit sijaitsevat pääoven vieressä rauhallisella sisäpihalla ja kellarikerroksen hallissa. Myös sähköpyörien akkujen lataus onnistuu.
Tuntiperusteisesti vuokrattavia neuvottelutiloja on Haikussa kaksi, ja erillisiä varastotiloja on vuokrattavissa niin pienempään kuin suurempaan tarpeeseen. Talon ensimmäisessä kerroksessa toimii tasokas lounasravintola.
Lisätietoja soita 020 730 4530 tai info@repoint.fi. Palvelumme on tilanhakijalle ilmainen.
Toimiston tiedot
| Osoite: | Kaikukatu 3 , 00530 Helsinki |
|---|---|
| Kauppatapa: | Vuokrataan |
| Tilatyyppi: | Toimisto |
| Pinta-ala: | 321 m² |
| Kerros: | 4 |
| Vuokra: | Ota yhteyttä kohteen välittäjään |
| Energialuokka: | Ei energiatodistusta |











