
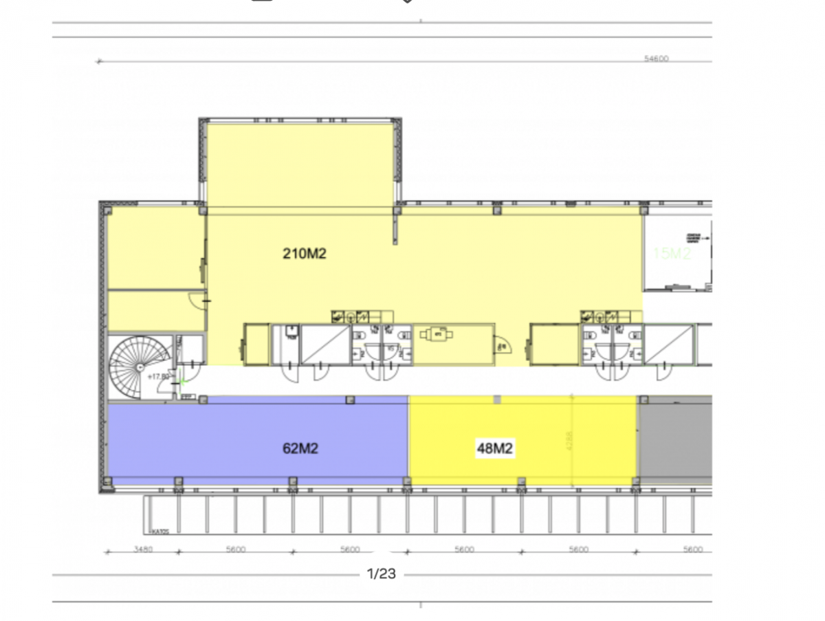
Vuokrataan toimisto 210 m² Pohjoinen Rautatienkatu 25 , Keskusta, Helsinki
Vuokrataan avara ja valoisa toimistotila Kampista. Tehokkaassa tilassa on avotilaa ja kaksi huonetta.
PR25:n kiinteistöstä Pohjoiselta Rautatiekadulta löytyy viihtyisää toimistotilaa Kampin kupeesta. Toimistokerrokset ovat selkeitä ja helposti muokattavissa.
Kellarikerroksissa vuokralaisia palvelee erittäin tilava pyöräkellari pukuhuoneineen. Lisäksi kiinteistöstä löytyy kuntosali, varastotilaa sekä pysäköintihalli 15:lle autolle. Ensimmäisen kerroksen neuvottelu- ja kokoustilat ovat kaikkien vuokralaisten yhteiskäytössä.
Kiinteistön sijainti metron ja Kampin bussiterminaalin tuntumassa pyöräilyn pääväylä Baanan varrella on erinomainen.
Lisätietoja soita 020 730 4530 tai info@repoint.fi. Palvelumme on tilanhakijalle ilmainen.
Toimiston tiedot
| Osoite: | Pohjoinen Rautatienkatu 25 , 00100 Helsinki |
|---|---|
| Kauppatapa: | Vuokrataan |
| Tilatyyppi: | Toimisto |
| Pinta-ala: | 210 m² |
| Kerros: | 2 |
| Vuokra: | Ota yhteyttä kohteen välittäjään |
| Energialuokka: | Ei energiatodistusta |












