
Vuokrataan toimisto 502 m² Elielinaukio 5 , Keskusta, Helsinki
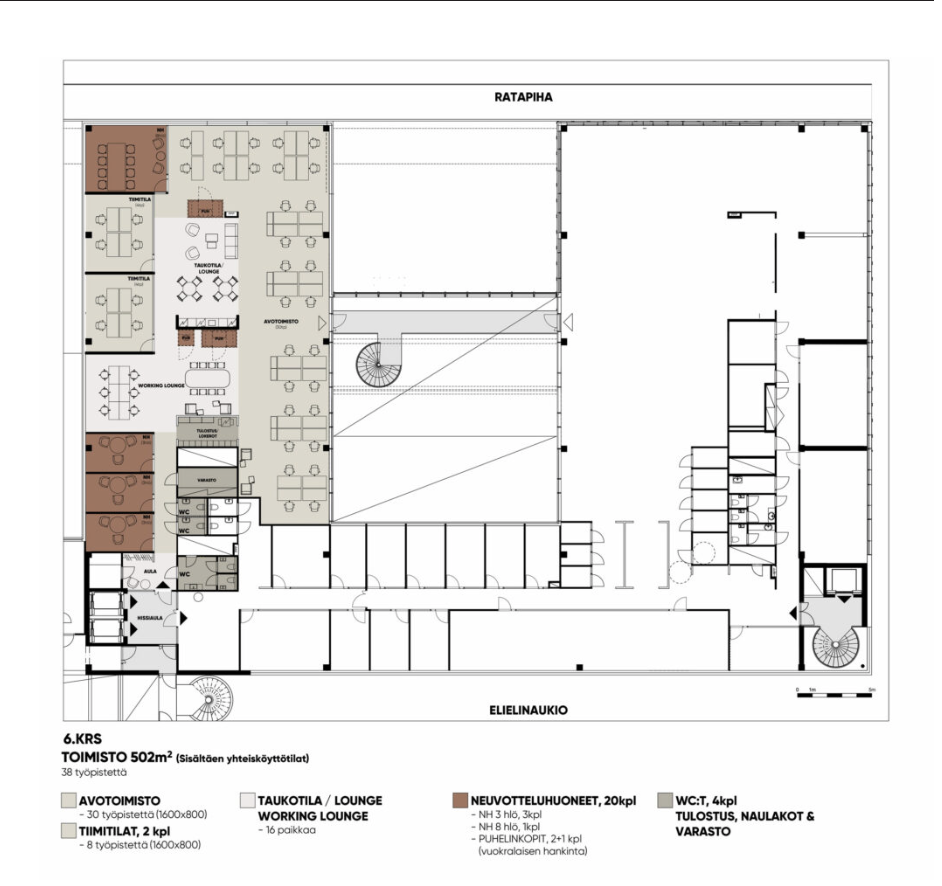
Vuokrataan valoisa 6. kerroksen toimistotila upeilla näkymillä ydinkeskustasta. Avarasta tilasta näkymät kolmeen eri suuntaan. Tilassa avotoimistoa, huoneita, 4 wc:tä, sekä viihtyisät keittiö- ja taukotilat keskellä toimistoa. Tilaa on mahdollista muokata seuraavan vuokralaisen tarpeiden mukaan, esimerkiksi tilaan mahdollista tehdä huoneita lisää.
Elielinaukio 5 on rakennettu 2003 ja se on toiminut pääkonttorina siitä alkaen. Kiinteistö muutetaan nyt ensi kertaa monikäyttäjätaloksi, joka tarjoaa tehokasta ja nykyaikaista toimitilaa ainutlaatuisin junaratanäkymin. Rakennuksen julkisivu, sisäänkäynti ja palveltu aula uudistetaan ja taloon avataan yhteiskäyttöinen terassi. Kellarista löytyy työmatkapyöräilijöille pyöräparkki, suihkutilat ja pukukaapit. Pyöräparkkiin pääsee ajamaan suoraan sisään kohta valmistuvan Kaisatunnelin kautta. Kiinteistöllä on BREEAM-sertifikaatti.
Lisätietoja soita 020 730 4530 tai info@repoint.fi. Palvelumme on tilanhakijalle ilmainen.
Toimiston tiedot
| Osoite: | Elielinaukio 5 , 00100 Helsinki |
|---|---|
| Kauppatapa: | Vuokrataan |
| Tilatyyppi: | Toimisto |
| Pinta-ala: | 502 m² |
| Kerros: | 6 |
| Vuokra: | Ota yhteyttä kohteen välittäjään |
| Energialuokka: | Ei energiatodistusta |












