
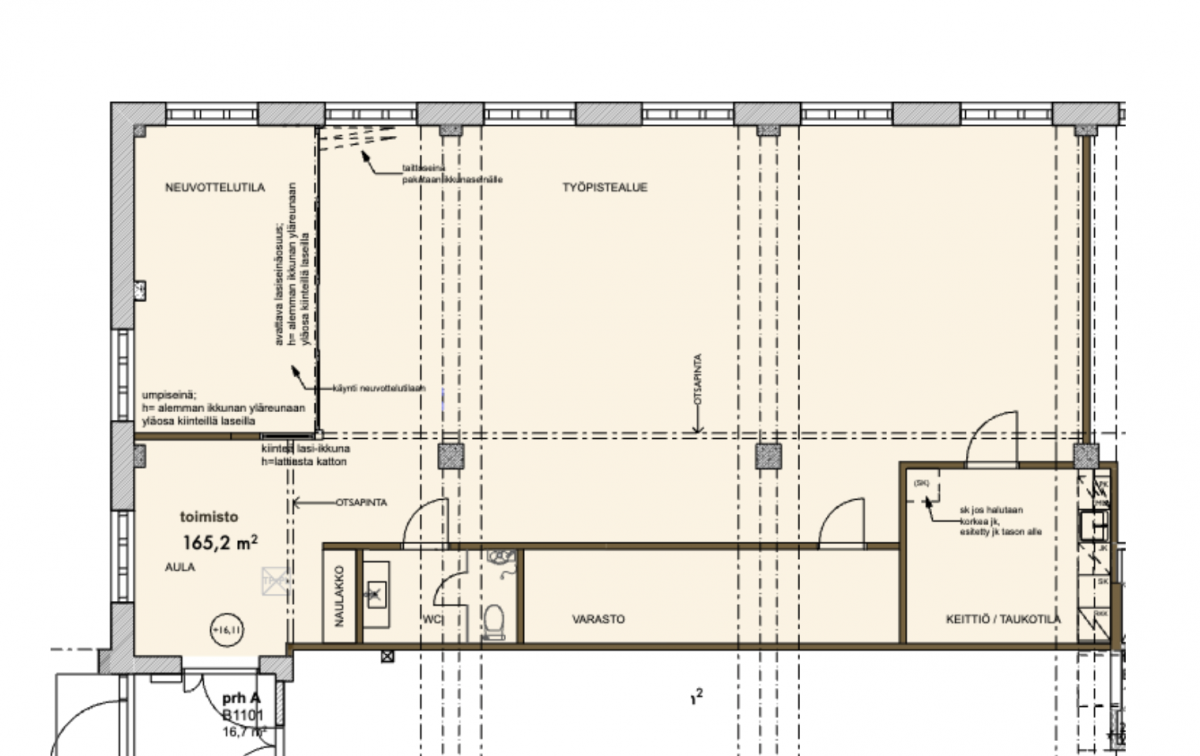
Vuokrataan toimisto 165 m² Silkkitehtaantie 5, Tikkurila, Vantaa
Vuokrataan moderni katutason toimistotila Tikkurilasta historiallisesta tehdasrakennuksesta. Tila koostuu avotilasta, neuvotteluhuoneesta, työhuoneesta keittiöstä ja wc-tilasta.
Silkkitehtaan korttelin alue mahdollistaa yritysten kasvun ja kehityksen tarjoten eri kokoisia tiloja. Tilat ovat pääosin uniikkeja monitilatoimistoja pitäen sisällään avotilaa, pienempiä työhuoneita ja neuvottelutiloja. Kohde sijaitsee Vantaanjoen varrella kävelymatkan etäisyydellä Tikkurilan juna-asemasta. Rakennus on saneerattu nykyiseen käyttöönsä vuonna 2020. Tarjolla myös paljon parkkipaikkoja.
Lisätietoja soita 020 730 4530 tai info@repoint.fi. Palvelumme on tilanhakijalle ilmainen.
Toimiston tiedot
| Osoite: | Silkkitehtaantie 5, 01300 Vantaa |
|---|---|
| Kauppatapa: | Vuokrataan |
| Tilatyyppi: | Toimisto |
| Pinta-ala: | 165 m² |
| Kerros: | 1 |
| Vuokra: | Ota yhteyttä kohteen välittäjään |
| Energialuokka: | Ei energiatodistusta |







