
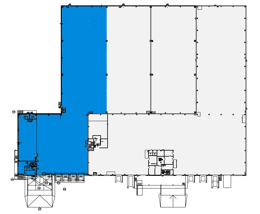
Vuokrataan varasto 2243 m² Pakkalantie 21, Pakkala, Vantaa
Vuokrataan vapautumassa olevaa tehokasta varastotilaa Pakkalasta. Lastauslaituri ja 4 lastaustaskua. Tilan vapaa korkeus 6,50 metriä.
Kiinteistö on helposti saavutettavissa Kehä III:lta (E18), josta on myös sujuvat yhteydet kaikille pääteille Helsingin seudulla.
Sijainti Helsinki-Vantaan lentokentän välittömässä läheisyydessä sekä laaja piha-alue antaa tälle teollisuuskiinteistölle uniikin leimansa.
Lisätietoja soita 020 730 4530 tai info@repoint.fi. Palvelumme on tilanhakijalle ilmainen.
Varaston tiedot
| Osoite: | Pakkalantie 21, 01510 Vantaa |
|---|---|
| Kauppatapa: | Vuokrataan |
| Tilatyyppi: | Varasto |
| Pinta-ala: | 2243 m² |
| Kerros: | 1 |
| Vuokra: | Ota yhteyttä kohteen välittäjään |
| Energialuokka: | Ei energiatodistusta |




