
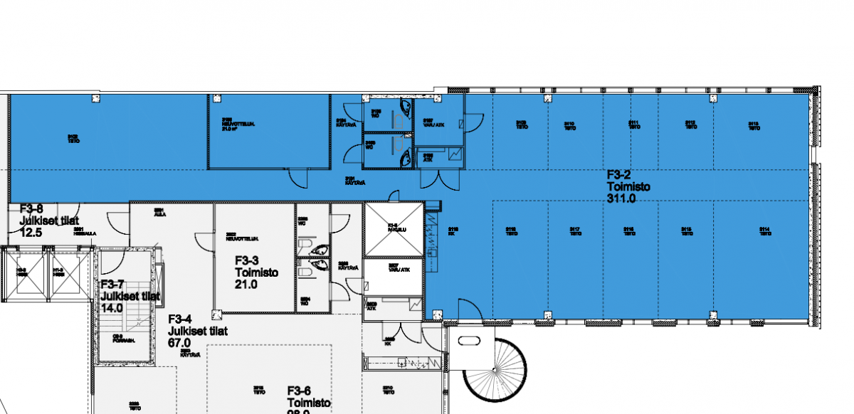
Vuokrataan toimisto 311 m² Bertel Jungin aukio 7 , Leppävaara, Espoo
Vuokrataan moderni toimistotila Leppävaarasta aivan Sellon vierestä. Tilassa on neuvotteluhuone, avotilaa, vetäytymishuoneita sekä oma keittiö ja wc-tilat. Tilaa voidaan tarvittaessa muokata seuraavaa käyttäjää varten. Tila on heti vapaa.
Alberga Business Park tarjoaa vuokralaisilleen viihtyisän työympäristön ja kattavat palvelut, kuten aulapalvelun, lounasravintolan ja neuvottelutilat. Kiinteistöllä on BREEAM Very Good -ympäristösertifikaatti.
Huippusijainti Leppävaarassa kauppakeskus Sellon vieressä junaradan ja bussiaseman läheisyydessä. Työmatkapyöräilijöille löytyy pyöräparkki ja sosiaalitilat. Autoilijoille vuokrattavissa pysäköintioikeuksia kiinteistön parkkitalosta.
Lisätietoja soita 020 730 4530 tai info@repoint.fi. Palvelumme on tilanhakijalle ilmainen.
Toimiston tiedot
| Osoite: | Bertel Jungin aukio 7 , 02600 Espoo |
|---|---|
| Kauppatapa: | Vuokrataan |
| Tilatyyppi: | Toimisto |
| Pinta-ala: | 311 m² |
| Kerros: | 7 |
| Vuokra: | Ota yhteyttä kohteen välittäjään |
| Energialuokka: | Ei energiatodistusta |








