
Vuokrataan toimisto 115 m² Linnoitustie 4, Leppävaara, Espoo
Vuokrataan modernia toimistotilaa Espoon Leppävaarasta.
Quartetto Business Park on tehokas ja viihtyisä yrityspuisto joka tarjoaa vuokralaisilleen kattavat palvelut.
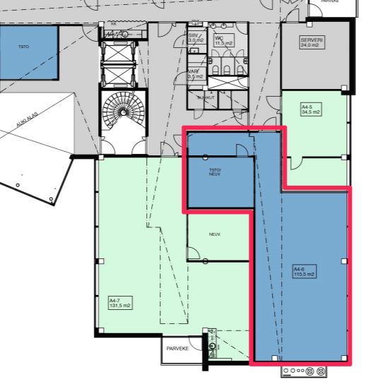
Tamä heti vapaa 4. kerroksen toimisto koostuu yhdestä huoneesta ja avotilasta. Tila voidaan muokata vuokralaisen tarpeiden mukaan.
Quartetto sijaitsee keskeisellä ja näkyvällä paikalla Kehä I:n ja Turuntien risteyskohdassa. Kauppakeskus Sellon palvelut sekä juna-asema ovat kävelymatkan etäisyydellä. Hyvät pysäköintitilat autoilijoille.
Lisätietoja soita 020 730 4530 tai info@repoint.fi. Palvelumme on tilanhakijalle ilmainen.
Toimiston tiedot
| Osoite: | Linnoitustie 4, 02600 Espoo |
|---|---|
| Kauppatapa: | Vuokrataan |
| Tilatyyppi: | Toimisto |
| Pinta-ala: | 115 m² |
| Kerros: | 4 |
| Vuokra: | Ota yhteyttä kohteen välittäjään |
| Energialuokka: | Ei energiatodistusta |






