
Vuokrataan toimisto 115 m² Pursimiehenkatu 29-31, Punavuori, Helsinki
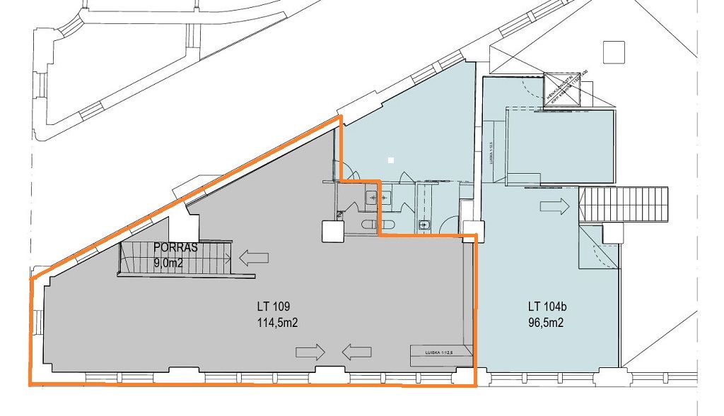
Vuokrataan Merikorttelista kompakti 114,5m2 toimisto kiinteistön 2. kerroksesta. Oma keittiö ja WC. Tila remontoidaan seuraavalle vuokralaiselle. Persoonallinen toimisto Bob's Laundryn yläpuolella. Oma sisäänkäynti porttikongista, ei hissiä.
Erinomainen sijainti Punavuoressa, suositussa dynaamisessa ja yhteisöllisessä Merikorttelissa! Alueella paljon laadukkaita ravintoloita ja kahviloita. Pysäköintitilaa vuokrattavissa korttelin omasta parkkihallista sekä läheisistä pysäköintilaitoksista.
Lisätietoja soita 020 730 4530 tai info@repoint.fi. Palvelumme on tilanhakijalle ilmainen.
Toimiston tiedot
| Osoite: | Pursimiehenkatu 29-31, 00150 Helsinki |
|---|---|
| Kauppatapa: | Vuokrataan |
| Tilatyyppi: | Toimisto |
| Pinta-ala: | 115 m² |
| Kerros: | 2 |
| Vuokra: | Ota yhteyttä kohteen välittäjään |
| Energialuokka: | Ei energiatodistusta |








