
Vuokrataan varasto 9039 m² Koskelontie 13, Koskelo, Espoo
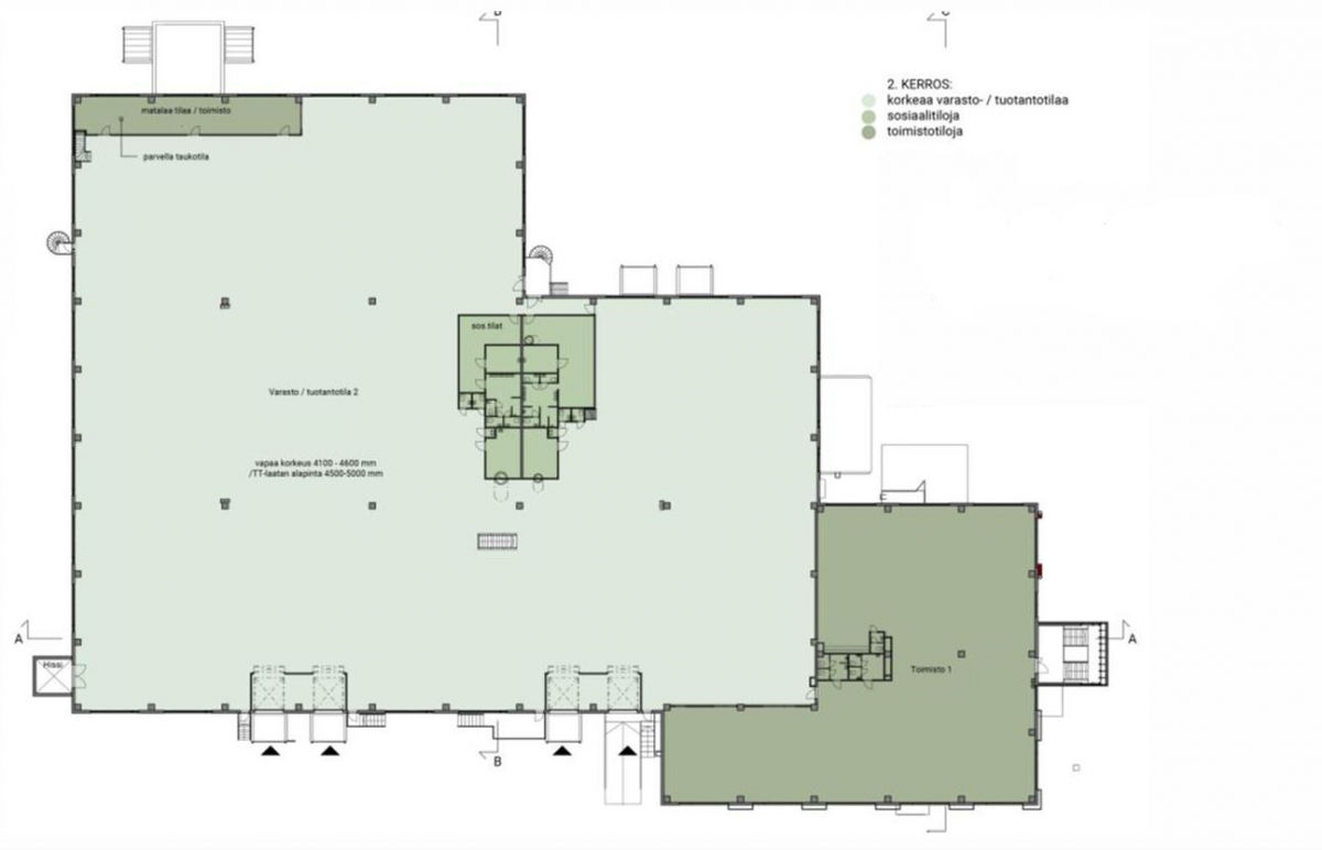
Vuokrataan tuotantoon ja varastointiin soveltuva kiinteistö Koskelosta. 7100m2 varasto- ja tuotantotilaa, joka jakautuu kahteen päällekkäiseen kerrokseen. Useita lastaustaskuja ja nosto-ovia. Varastotilojen vapaa korkeus n. 4,6 metriä. Sisäänajomahdollisuus molempiin kerroksiin.
Lisäksi toimistotilaa n. 800m2. Sosiaalitiloja sekä ravintolatilaa n. 300m2. Osa ilmoituksen kuvista on arkkitehdin havainnekuvia. Tila on heti vapaana.
Keskeinen sijainti Kehä III:n välittömässä läheisyydessä takaa nopeat yhteydet kaikille pääväylille.
Lisätietoja soita 020 730 4530 tai info@repoint.fi. Palvelumme on tilanhakijalle ilmainen.
Varaston tiedot
| Osoite: | Koskelontie 13, 02920 Espoo |
|---|---|
| Kauppatapa: | Vuokrataan |
| Tilatyyppi: | Varasto |
| Pinta-ala: | 9039 m² |
| Kerros: | 1 |
| Vuokra: | Ota yhteyttä kohteen välittäjään |
| Energialuokka: | Ei energiatodistusta |











