
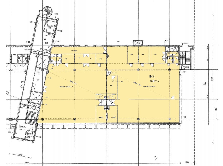
Vuokrataan toimisto 340 m² Sorvaajankatu 11 A, Herttoniemi, Helsinki
Vuokrataan monikäyttöistä toimistotilaa Herttoniemestä. Avaran avotilan lisäksi muutama toimistohuone / neuvotteluhuone. Katso tilan virtuaaliesittely.
Sorvaajankatu 11 A on pienteollisuuskiinteistö Herttoniemessä. Kiinteistön tilat soveltuvat hyvin toimisto-, tuotanto- ja varastotiloiksi. Talossa noin 20 auton parkkihalli ja pihalla on hyvin pysäköintitilaa. Talon kellarikerroksesta voi tarvittaessa vuokrata pukuhuoneen suihkulla.
Lisätietoja soita 020 730 4530 tai info@repoint.fi. Palvelumme on tilanhakijalle ilmainen.
Toimiston tiedot
| Osoite: | Sorvaajankatu 11 A, 00880 Helsinki |
|---|---|
| Kauppatapa: | Vuokrataan |
| Tilatyyppi: | Toimisto |
| Pinta-ala: | 340 m² |
| Kerros: | 2 |
| Vuokra: | Ota yhteyttä kohteen välittäjään |
| Energialuokka: | Ei energiatodistusta |


