
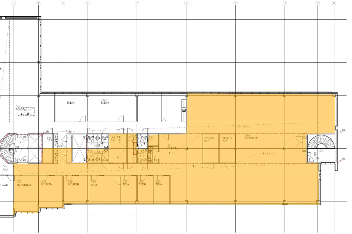
Vuokrataan toimisto 511 m² Kaupintie 5, Lassila, Helsinki
Vuokrataan keskeiseltä sijainnilta hyväkuntoista toimistotilaa Kehä I ja Vihdintien lähettyviltä. Erittäin hyvät julkiset kulkuyhteydet, Pohjois-Haagan juna-asema aivan vieressä.
Kiinteistöstä vuokrattavissa neuvottelutiloja ja parkkipaikkoja. Kauppakeskus Kaaren palvelut kävelymatkan päässä.
Lisätietoja soita 020 730 4530 tai info@repoint.fi. Palvelumme on tilanhakijalle ilmainen.
Toimiston tiedot
| Osoite: | Kaupintie 5, 00440 Helsinki |
|---|---|
| Kauppatapa: | Vuokrataan |
| Tilatyyppi: | Toimisto |
| Pinta-ala: | 511 m² |
| Kerros: | 5 |
| Vuokra: | Ota yhteyttä kohteen välittäjään |
| Energialuokka: | Ei energiatodistusta |

