
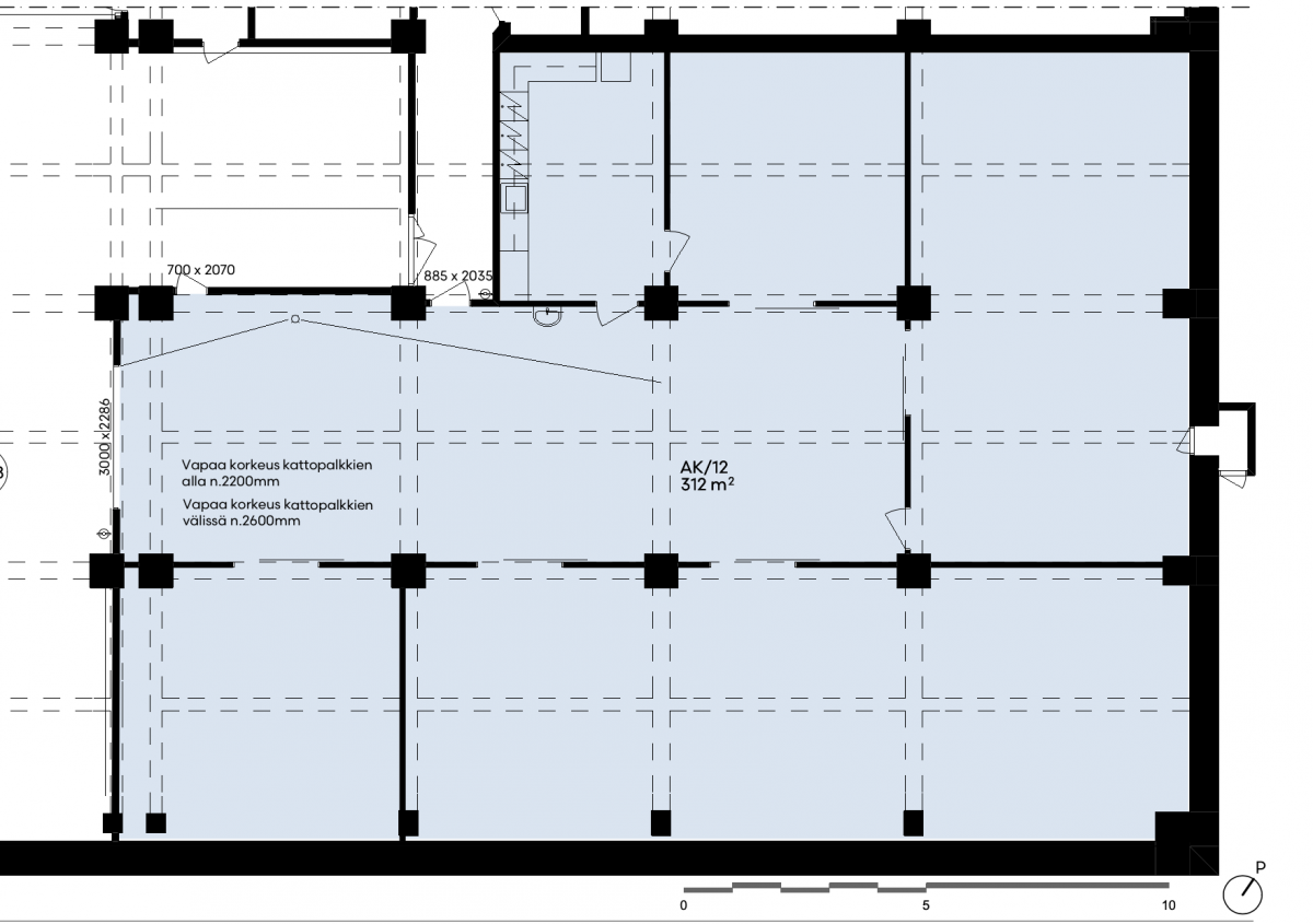
Vuokrataan varasto 312 m² Salomonkatu 17 B, Keskusta, Helsinki
Vuokrataan varastotila Kampista Autotalon parkkihallista. Tilan korkeus 260 cm ja kattopalkkien kohdalta korkeus 220 cm (pakettiautolla sisäänajo mahdollista). Tila on jaettu neljään varastohuoneeseen ja keskelle mahtuu hyvin noin 3 autoa. tilassa kaksi vesipistettä ja wc tilat käytettävissä talon käytävällä. Kulku tilaan parkkihallin kautta tai Autotalon hissillä. Tila vapautuu 1.6.2022.
Lisätietoja soita 020 730 4530 tai info@repoint.fi. Palvelumme on tilanhakijalle ilmainen.
Varaston tiedot
| Osoite: | Salomonkatu 17 B, 00100 Helsinki |
|---|---|
| Kauppatapa: | Vuokrataan |
| Tilatyyppi: | Varasto |
| Pinta-ala: | 312 m² |
| Kerros: | -3 |
| Vuokra: | Ota yhteyttä kohteen välittäjään |
| Energialuokka: | Ei energiatodistusta |
















