
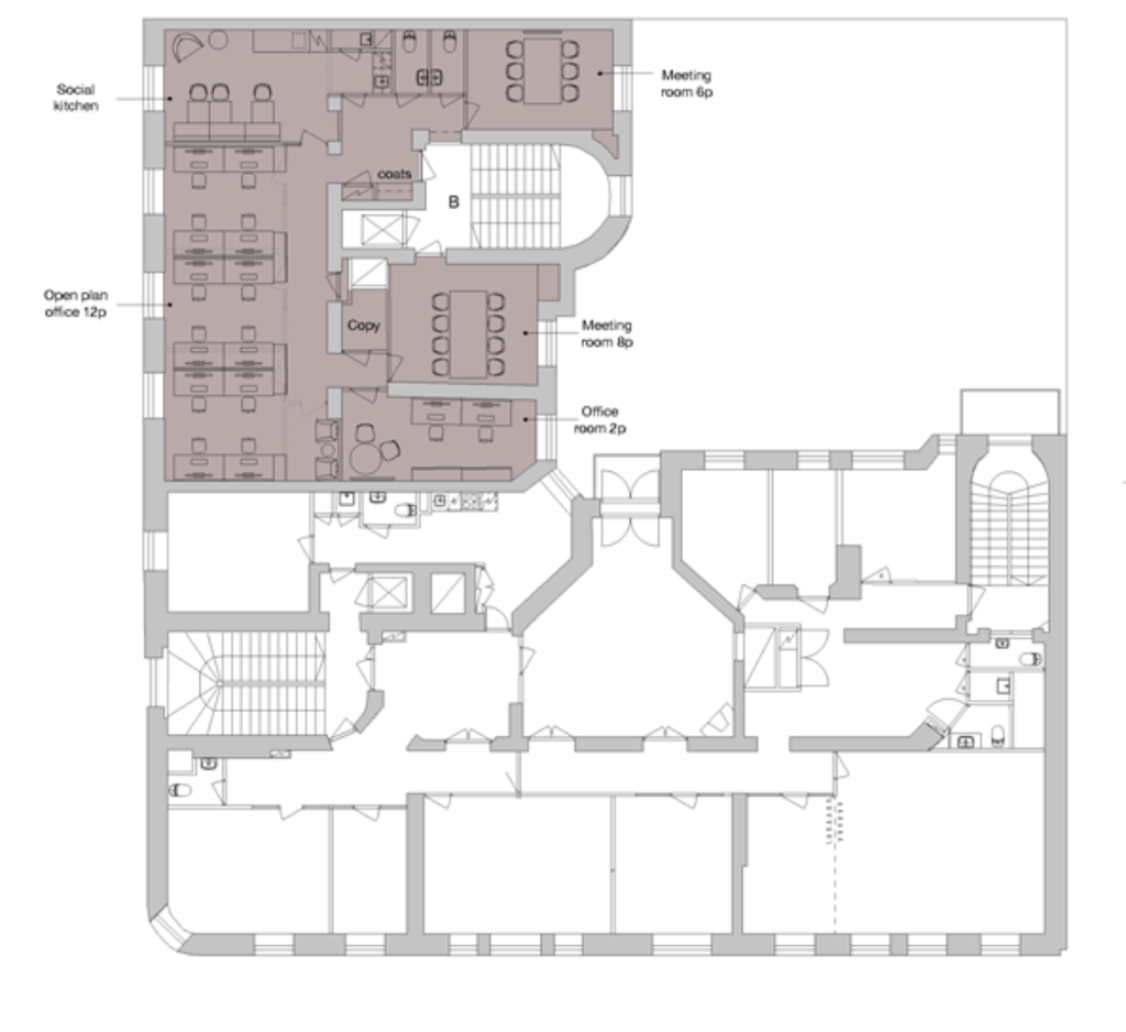
Vuokrataan toimisto 158 m² Lapinlahdenkatu 3 , Kamppi, Helsinki
Vuokrataan toimistotilaa loistavalta sijainnilta Kampista. Tilassa on pääosin huoneita. Pohjaratkaisut ovat joustavia ja räätälöitävissä tarpeiden mukaan.
Proffa on upea arvorakennus. Talo on rakennettu vuonna 1900 ja alunperin ollut nimeltään Professorin talo. Kiinteistö sijaitsee Kampissa eli aivan Helsingin keskustassa. Lyhyen matkan päässä on tarjolla monet palvelut ravintoloista erikoisliikkeisiin ja lähellä on myös Esplanadin puisto sekä Hietalahden ranta. Keskeisen sijainnin ansiosta julkisen liikenteen yhteydet ovat hyvät. Metrolle sekä juna-asemalle on lyhyt kävelymatka.
Lisätietoja soita 020 730 4530 tai info@repoint.fi. Palvelumme on tilanhakijalle ilmainen.
Toimiston tiedot
| Osoite: | Lapinlahdenkatu 3 , 00180 Helsinki |
|---|---|
| Kauppatapa: | Vuokrataan |
| Tilatyyppi: | Toimisto |
| Pinta-ala: | 158 m² |
| Kerros: | 4 |
| Vuokra: | Ota yhteyttä kohteen välittäjään |
| Energialuokka: | Ei energiatodistusta |






