
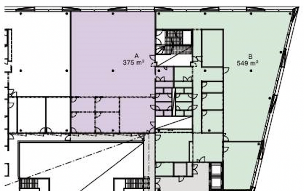
Vuokrataan toimisto 924 m² Tukkutorinkuja 5 , Kalasatama, Helsinki
Vuokrattavana avaraa ja modernia toimitilaa uudiskohteen 5. kerroksessa. Mahdollisuus räätälöidä vuokralaisen toiveiden mukainen avotoimisto.
Kalasataman Kampus sijaitsee inspiroivassa merellisessä ympäristössä aivan metron lähellä. Kampuksen ympärillä Kalasatama kehittyy ja kasvaa vauhdikkaasti elämän täyteiseksi kaupunginosaksi.
Kampuksella on tarjolla aulapalvelu, 2. kerroksen kokousmaailman neuvottelu-/kokoustilat, edustustila terasseineen, pyöräparkki, sosiaalitilat sekä parkkihalli. Lisää palveluja tarjoaa aivan vieressä sijaitseva kauppakeskus REDI.
Lisätietoja soita 020 730 4530 tai info@repoint.fi. Palvelumme on tilanhakijalle ilmainen.
Toimiston tiedot
| Osoite: | Tukkutorinkuja 5 , 00580 Helsinki |
|---|---|
| Kauppatapa: | Vuokrataan |
| Tilatyyppi: | Toimisto |
| Pinta-ala: | 924 m² |
| Kerros: | 5 |
| Vuokra: | Ota yhteyttä kohteen välittäjään |
| Energialuokka: | Ei energiatodistusta |






