
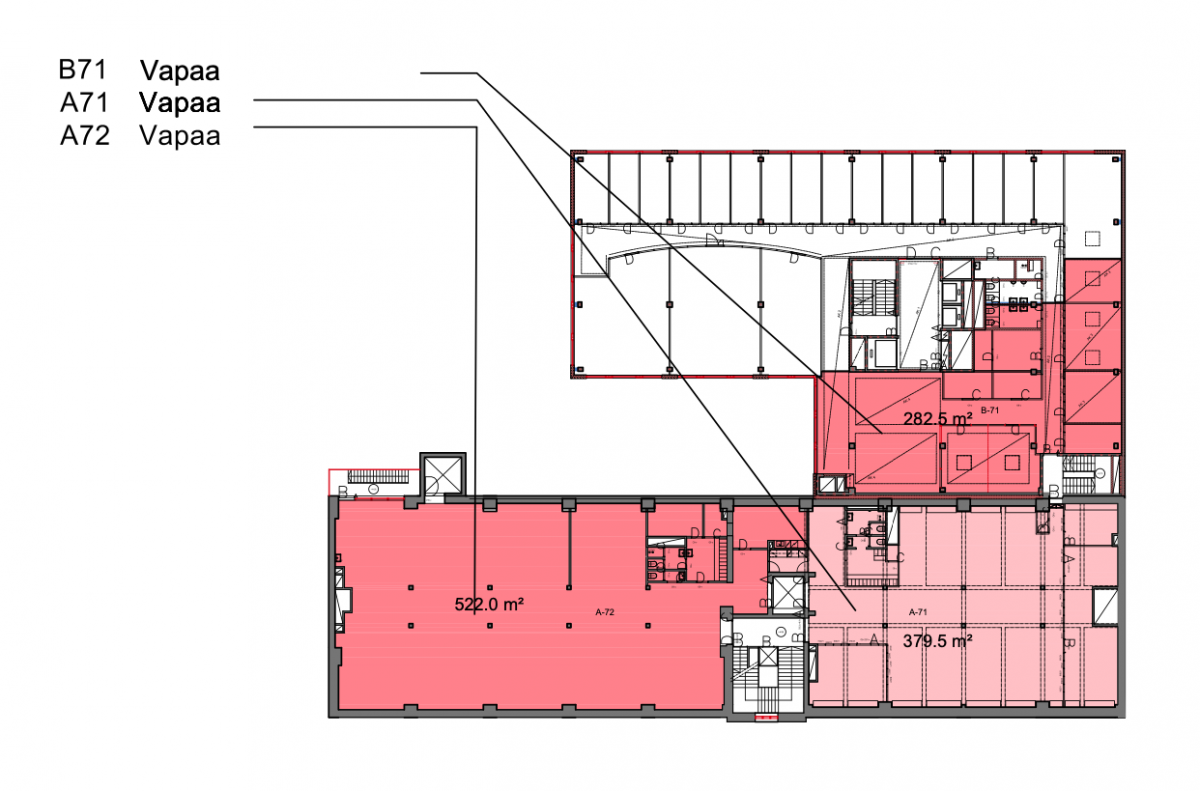
Vuokrataan toimisto 532 m² Elimäenkatu 9 , Vallila, Helsinki
Vuokrataan tyylikästä ja modernia toimistotilaa uudistetusta Vallilan Kravattitehtaasta. Ainutlaatuinen ullakkotoimisto johon tulee oma tavarahissi. Ilmoituksen kuvat yleiskuvia kiinteistön tiloista.
Kiinteistö on saneerattu kokonaisuudessaan vastaamaan tämän päivän toimistokäyttäjien tarpeita. Talossa hyvät palvelut vuokralaisille, kuten aulapalvelu, erikseen vuokrattavia neuvottelutiloja ja tasokas lounasravintola. Kiinteistöstä löytyy myös työmatkapyöräilijöille suihkutilat ja kuivaushuone vaatteille, lainapyöriä vuokralaisille sekä pysäköintipaikkoja ja sähköautojen latauspisteitä. Vallilaan pääsee kulkemaan kätevästi myös bussilla tai raitiovaunulla.
Lisätietoja soita 020 730 4530 tai info@repoint.fi. Palvelumme on tilanhakijalle ilmainen.
Toimiston tiedot
| Osoite: | Elimäenkatu 9 , 00510 Helsinki |
|---|---|
| Kauppatapa: | Vuokrataan |
| Tilatyyppi: | Toimisto |
| Pinta-ala: | 532 m² |
| Kerros: | 7 |
| Vuokra: | Ota yhteyttä kohteen välittäjään |
| Energialuokka: | Ei energiatodistusta |












