
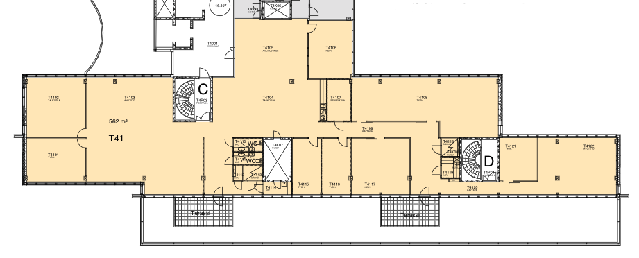
Vuokrataan toimisto 562 m² Metsänneidonkuja 4-12, Tapiola, Espoo
Vuokrataan huonetoimisto Spetrin Trio-talosta. Tilassa paljon avotilaa ja erillisiä huoneita, oma keittiö sekä wc-tilat. Kuvat ovat yleiskuvia kiinteistön tiloista.
Spektri Business Park sijaitsee Tapiolassa Kehä 1:n varrella. Spektriin on helppo saapua omalla autolla ja parkkipaikkoja on runsaasti. Metroasema on kävelyetäisyydellä ja bussipysäkki kiinteistön vieressä.
Spektri Business Park tarjoaa kattavat laadukkaat palvelut vuokralaisilleen, kuten aulapalvelu, kahvila ja ravintola, kuntosali sekä suihku- ja saunatilat, auditorio ja kokoustilat.
Lisätietoja soita 020 730 4530 tai info@repoint.fi. Palvelumme on tilanhakijalle ilmainen.
Toimiston tiedot
| Osoite: | Metsänneidonkuja 4-12, 02130 Espoo |
|---|---|
| Kauppatapa: | Vuokrataan |
| Tilatyyppi: | Toimisto |
| Pinta-ala: | 562 m² |
| Kerros: | 4 |
| Vuokra: | Ota yhteyttä kohteen välittäjään |
| Energialuokka: | Ei energiatodistusta |














