
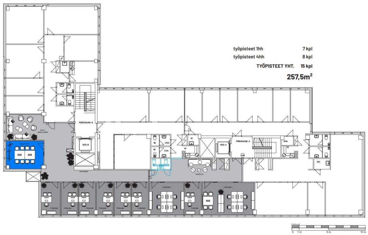
Vuokrataan toimisto 257 m² Porkkalankatu 7 , Ruoholahti, Helsinki
Vuokrataan 3. kerroksen toimistotila Ruoholahdesta. Tila koostuu nykymuodossaan erikokoisista huoneista, avotilasta ja neuvotteluhuoneesta. Lisäksi oma keittiö ja sosiaalitilat. Kiinteistössä erillisiä kokoustiloja.
Salmisaaren liikekeskus sijaitsee keskeisellä paikalla Ruoholahdessa. Kohteeseen on hyvät liikenneyhteydet ja parkkihalliin pääsee ajamaan suoraan Länsiväylältä. Ruoholahden metroasemalle on matkaa alle 500 metriä. Alueella on runsaasti lounasravintoloita ja muut palvelut löytyvät kadun toiselta puolelta Kauppakeskus Ruoholahdesta.
Lisätietoja soita 020 730 4530 tai info@repoint.fi. Palvelumme on tilanhakijalle ilmainen.
Toimiston tiedot
| Osoite: | Porkkalankatu 7 , 00180 Helsinki |
|---|---|
| Kauppatapa: | Vuokrataan |
| Tilatyyppi: | Toimisto |
| Pinta-ala: | 257 m² |
| Kerros: | 3 |
| Vuokra: | Ota yhteyttä kohteen välittäjään |
| Energialuokka: | F2007 |

