
Vuokrataan toimisto 1051 m² Klovinpellontie 1-3 , Mankkaa, Espoo
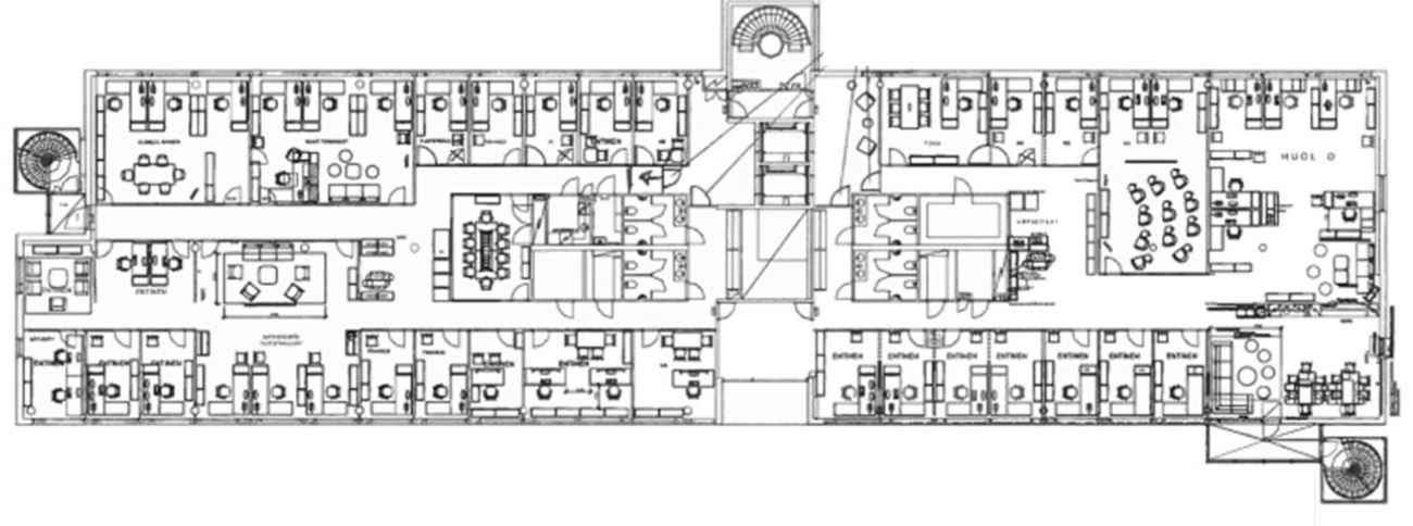
Vuokrataan 5. kerroksen toimistotila, joka koostuu nykymuodossaan huoneista ja avotilasta. Tämä koko kerroksen tila voidaan muokata vuokralaisen tarpeisiin sopivaksi. Upeat 360 näkymät Espoon ylle.
Hyvät julkiset yhteydet Espoon Mankkaalta, linja-autopysäkit aivan vieressä. Runsaasti parkkitilaa autoilijoille sekä pihalta että parkkihallista. Työmatkapyöräilijöille pyöräparkki hallissa ja pukuhuonetilat. Kiinteistöstä löytyy myös kuntosali.
Lisätietoja soita 020 730 4530 tai info@repoint.fi. Palvelumme on tilanhakijalle ilmainen.
Toimiston tiedot
| Osoite: | Klovinpellontie 1-3 , 02180 Espoo |
|---|---|
| Kauppatapa: | Vuokrataan |
| Tilatyyppi: | Toimisto |
| Pinta-ala: | 1051 m² |
| Kerros: | 5 |
| Vuokra: | Ota yhteyttä kohteen välittäjään |
| Energialuokka: | Ei energiatodistusta |




