
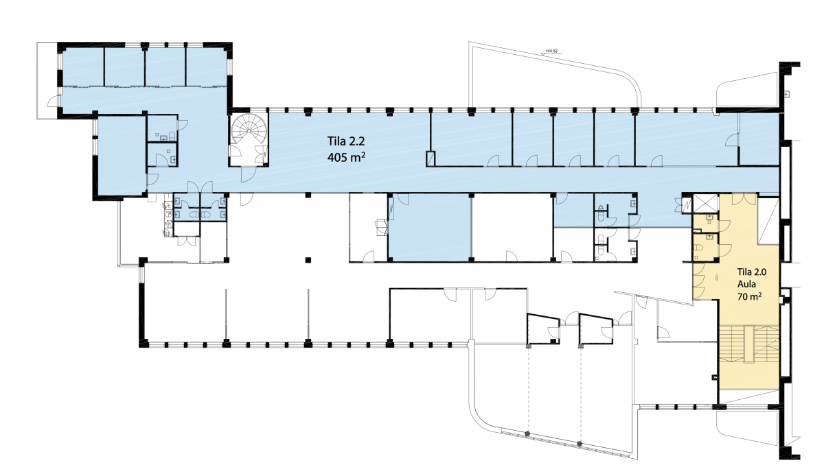
Vuokrataan toimisto 498 m² Kalliosolantie 2, Tuupakka, Vantaa
Vuokrataan 2. kerroksen toimistotila. Tilassa huoneita ja avotilaa. Tilaa mahdollista muokata seuraavan käyttäjän tarpeita vastaavaksi.
Tuupakantalo on tehokas ja toimiva tilakokonaisuus Kehä kolmosella Aviapoliksen yritysalueen eteläosassa.
Kiinteistössä lounasravintola ja pieni kuntosali sekä isot sosiaalitilat.
Hyvä logistinen sijainti ja näkyvyys Kehä III varrella.
Lisätietoja soita 020 730 4530 tai info@repoint.fi. Palvelumme on tilanhakijalle ilmainen.
Toimiston tiedot
| Osoite: | Kalliosolantie 2, 01740 Vantaa |
|---|---|
| Kauppatapa: | Vuokrataan |
| Tilatyyppi: | Toimisto |
| Pinta-ala: | 498 m² |
| Kerros: | 2 |
| Vuokra: | Ota yhteyttä kohteen välittäjään |
| Energialuokka: | Ei energiatodistusta |





