
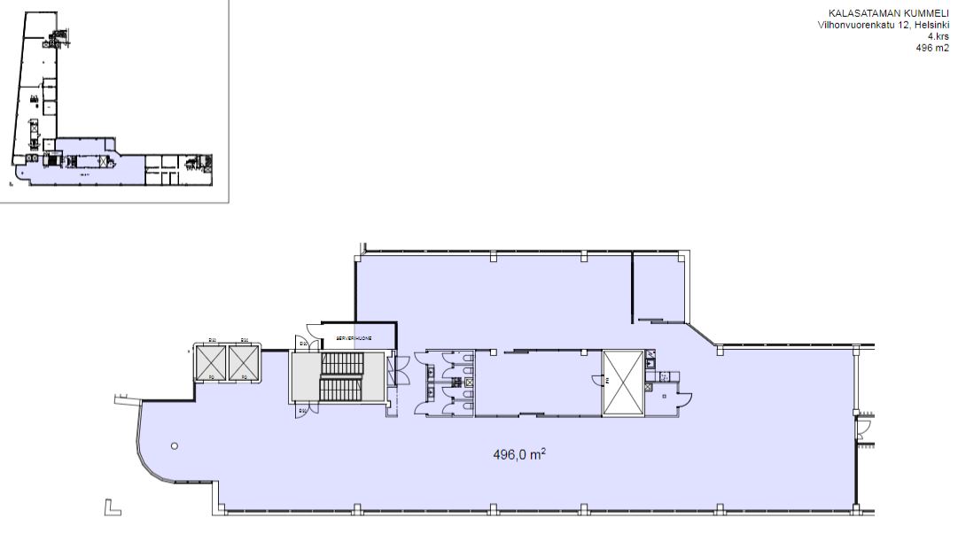
Vuokrataan toimisto 494 m² Sörnäisten rantatie 29, Kalasatama, Helsinki
Vuokrataan tehokas monitilatoimisto Kalasatamasta. Avotilan lisäksi yksi lasiseinäinen neuvotteluhuone, oma keittiö ja wc-tilat.
Tila on muokattavissa käyttäjän tarpeeseen sopivaksi.
Business Park Kalasataman Kummeli sijaitsee kasvavalla ja kehittyvällä alueella Helsingissä, hyvien kulkuyhteyksien varrella.
Hyvät julkiset kulkuyhteydet. Metroasema ja Redin palvelut kävelyetäisyydellä.
Lisätietoja soita 020 730 4530 tai info@repoint.fi. Palvelumme on tilanhakijalle ilmainen.
Toimiston tiedot
| Osoite: | Sörnäisten rantatie 29, 00580 Helsinki |
|---|---|
| Kauppatapa: | Vuokrataan |
| Tilatyyppi: | Toimisto |
| Pinta-ala: | 494 m² |
| Kerros: | 4 |
| Vuokra: | Ota yhteyttä kohteen välittäjään |
| Energialuokka: | Ei energiatodistusta |


