
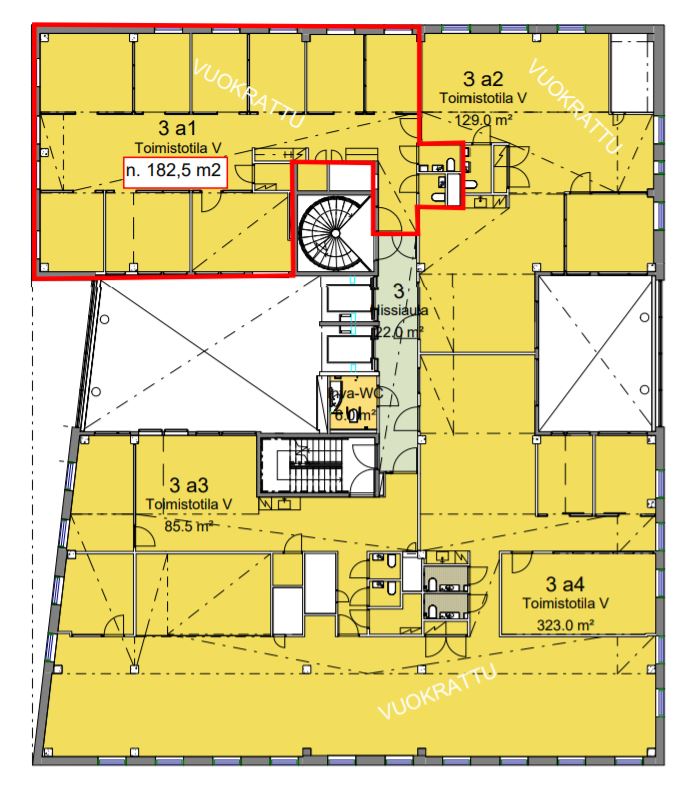
Vuokrataan toimisto 183 m² Mannerheimintie 113, Ruskeasuo, Helsinki
Vuokrattavissa vapautumassa olevaa modernia toimistotilaa näkyvältä paikalta Aitio Business Parkista Mannerheimintieltä.
Tämä valoisa huoneista koostuva toimisto sijaitsee Verdi-talon 3. kerroksessa. Toimistossa on oma keittiö ja omat wc-tilat.
Aitio Business Parkin toimitilat voidaan muokata käyttäjän toiveiden mukaisesti.
Autoilijoille löytyy parkkipaikkoja kiinteistön kolmikerrokisisesta parkkihallista. Hyvät julkiset kulkuyhteydet. Vapautuminen 1.2.2020.
Lisätietoja soita 020 730 4530 tai info@repoint.fi. Palvelumme on tilanhakijalle ilmainen.
Toimiston tiedot
| Osoite: | Mannerheimintie 113, 00280 Helsinki |
|---|---|
| Kauppatapa: | Vuokrataan |
| Tilatyyppi: | Toimisto |
| Pinta-ala: | 183 m² |
| Kerros: | 3 |
| Vuokra: | Ota yhteyttä kohteen välittäjään |
| Energialuokka: | Ei energiatodistusta |


