
Vuokrataan varasto 295 m² Ratapihantie 11, Pasila, Helsinki
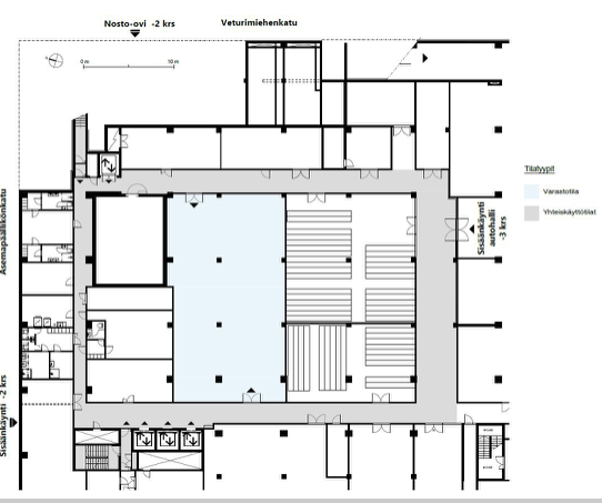
Vuokrataan kellarikerroksen varastotilakeskeiseltä sijainnilta Pasilasta Messukeskuksen läheltä. Tilan korkeus 3,5 metriä. Tavarahissiyhteys kerrostasolle.
Kiinteistön välittömässä läheisyydessä on Pasilan asema, jossa pysähtyvät kaikki lähi- ja kaukoliikenteen junat. Vierestä kulkevat myös raitiovaunut sekä lukuisat bussit.
Pasilan monipuoliset palvelut ovat kävelyetäisyydellä: lounasta voi nauttia alueen ravintoloissa ja ruokaostokset hoituvat kätevästi lounastauolla tai kotimatkalla. Kivenheiton päässä kiinteistöstä on mm. Triplan kauppakeskus, Messukeskus ja Mäkelänrinteen uintikeskuksen kattava liikuntatarjonta.
Lisätietoja soita 020 730 4530 tai info@repoint.fi. Palvelumme on tilanhakijalle ilmainen.
Varaston tiedot
| Osoite: | Ratapihantie 11, 00520 Helsinki |
|---|---|
| Kauppatapa: | Vuokrataan |
| Tilatyyppi: | Varasto |
| Pinta-ala: | 295 m² |
| Kerros: | -3 |
| Vuokra: | Ota yhteyttä kohteen välittäjään |
| Energialuokka: | Ei energiatodistusta |

